EasyManua.ls Logo

Kohler 9EKOZD

Kohler 9EKOZD
56 pages
To Next Page IconTo Next Page
To Next Page IconTo Next Page
To Previous Page IconTo Previous Page
To Previous Page IconTo Previous Page
Loading...
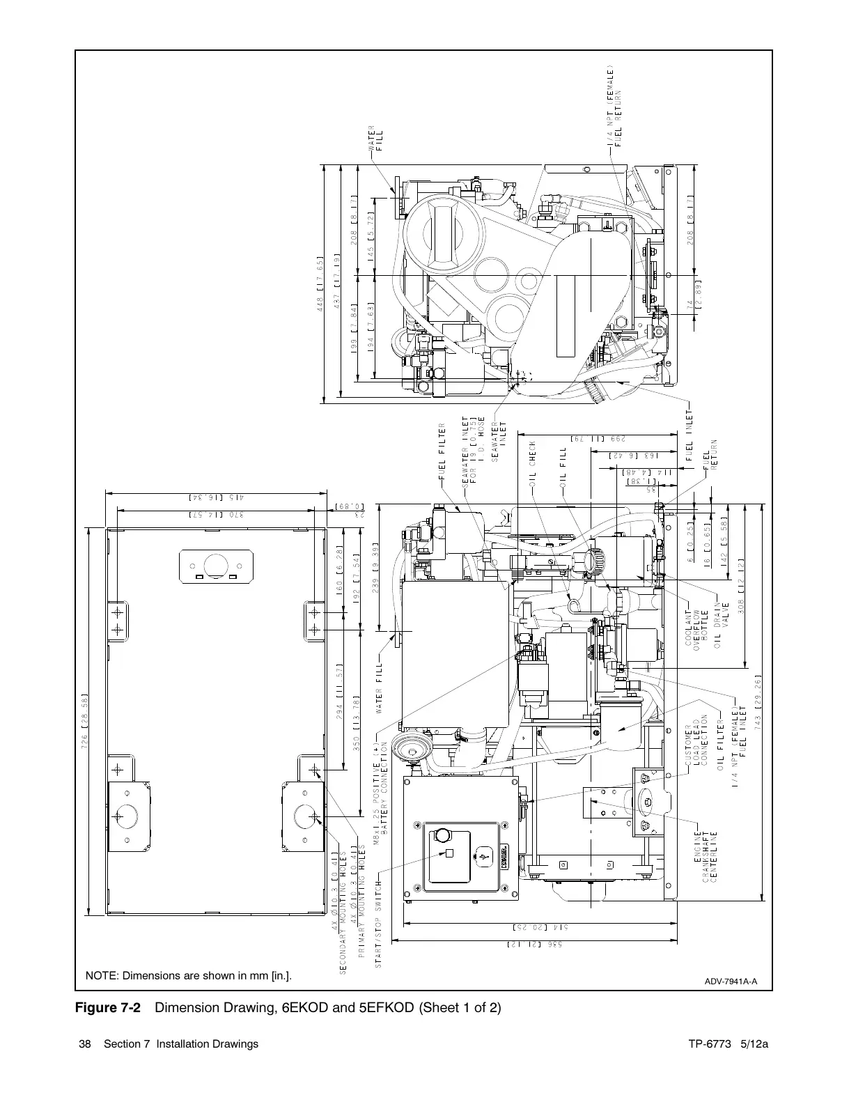
TP-6773 5/12a38 Section 7 Installation Drawings
ADV-7941A-A
NOTE: Dimensions are shown in mm [in.].
Figure 7-2 Dimension Drawing, 6EKOD and 5EFKOD (Sheet 1 of 2)
All manuals and user guides at all-guides.com

Other manuals for Kohler 9EKOZD

Related product manuals