EasyManua.ls Logo

Kohler Command CH25 - Page 139

Kohler Command CH25
232 pages
Print Icon
To Next Page IconTo Next Page
To Next Page IconTo Next Page
To Previous Page IconTo Previous Page
To Previous Page IconTo Previous Page
Loading...
8.15
Section 8
Electrical System and Components
8
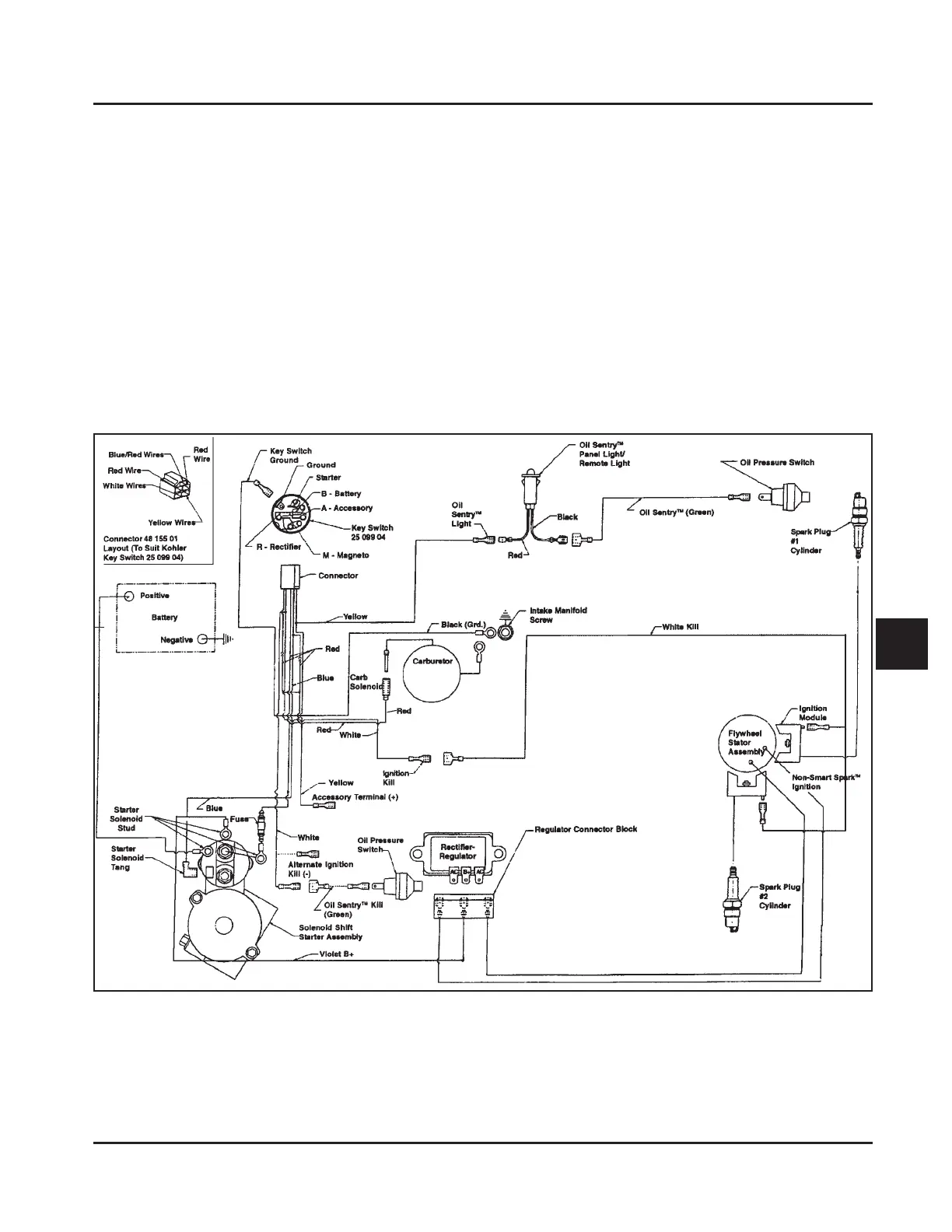
15/20/25 Amp Regulated Charging System
Figure 8-17. Wiring Diagram - 15/20/25 Amp Regulated Battery Charging System with Fixed Timing.
Battery Charging System
General
Most engines are equipped with a 15 or 20 amp
regulated charging system. Some have a 25 amp
regulated charging system. See Figure 8-17 and 8-18
for the 15/20/25 amp charging system diagram. Some
engines utilize a 3 amp unregulated system with
optional 70 watt lighting circuit. Refer to Figure 8-22.
NOTE: Observe the following guidelines to avoid
damage to the electrical system and
components:
Make sure the battery polarity is correct. A
negative (-) ground system is used.
Disconnect the rectifier-regulator plug and/or the
wiring harness plug before doing any electric
welding on the equipment powered by the
engine. Also, disconnect all other electrical
accessories in common ground with the engine.
Prevent the stator (AC) leads from touching or
shorting while the engine is running. This could
damage the stator.

Related product manuals