EasyManua.ls Logo

Komatsu PC4000 - Page 2

Komatsu PC4000
94 pages
Print Icon
To Next Page IconTo Next Page
To Next Page IconTo Next Page
To Previous Page IconTo Previous Page
To Previous Page IconTo Previous Page
Loading...
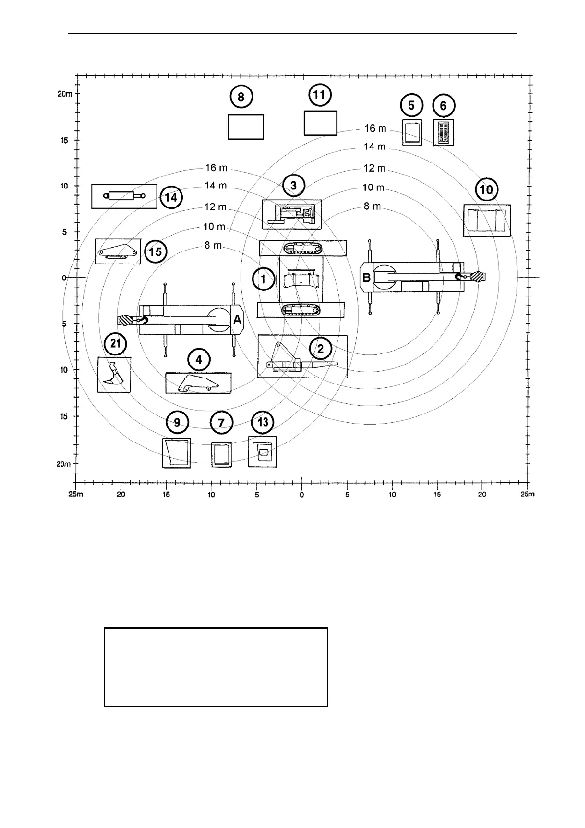
Assembly Procedure PC4000
PC4000Asrev05
Edition 08/2005
2
Z23038
All stated information corresponds
to the present development and is
subject to possible future changes
without prior notice.

Other manuals for Komatsu PC4000

Related product manuals