EasyManua.ls Logo

Kool-It Ikon KBC36 - Page 12

Kool-It Ikon KBC36
15 pages
Print Icon
To Next Page IconTo Next Page
To Next Page IconTo Next Page
To Previous Page IconTo Previous Page
To Previous Page IconTo Previous Page
Loading...
Service and Installation Manual
10
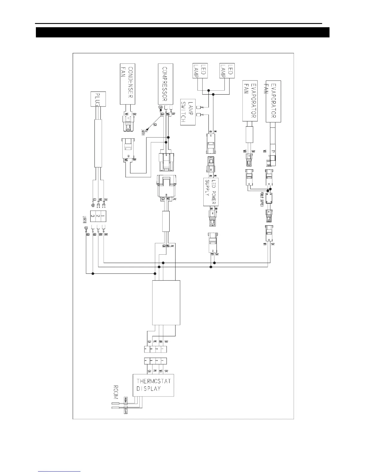
WIRING DIAGRAM
MODEL: KBC95
L
1
2
N