EasyManua.ls Logo

koppel KV24ODU-ARF21 - Field Wiring

koppel KV24ODU-ARF21
79 pages
Print Icon
To Next Page IconTo Next Page
To Next Page IconTo Next Page
To Previous Page IconTo Previous Page
To Previous Page IconTo Previous Page
Loading...
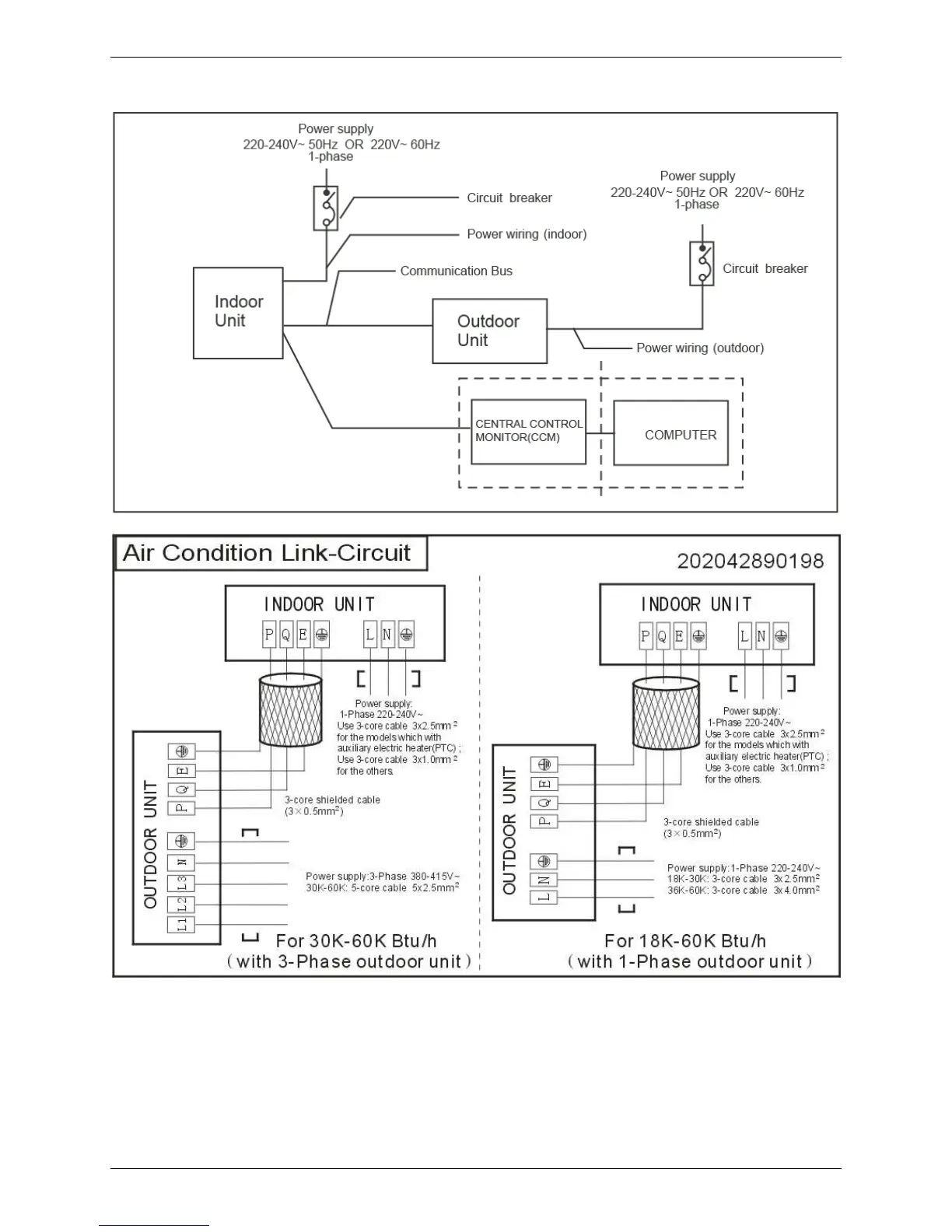
Field Wiring
11. Field Wiring
Wiring chart
Ceiling & Floor Type 31

Related product manuals