EasyManua.ls Logo

Kozi BayWin - II. INSTALLATION; 1. Clearance to Combustibles

Kozi BayWin
40 pages
Print Icon
To Next Page IconTo Next Page
To Next Page IconTo Next Page
To Previous Page IconTo Previous Page
To Previous Page IconTo Previous Page
Loading...
Page 6
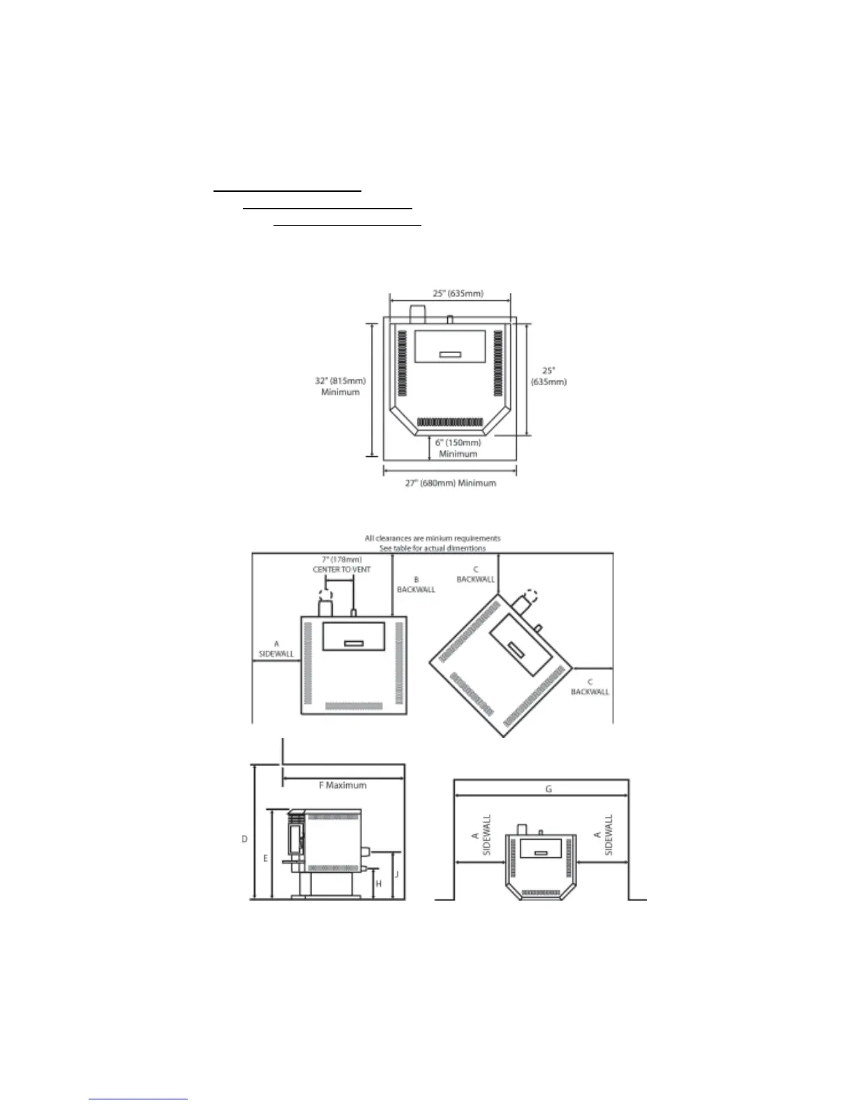
II. INSTALLATION
1. Clearance to Combustibles
1.1 Installation Clearances
Please refer to the following figures for all clearances to combustibles. Please note that
these clearances are for your KOZI heater only. Each venting manufacturer/supplier has
their individual clearances which must also be respected.
Figure 2. Sidewall Clearances
Figure 1. KOZI BayWin noncombustible floor protector
(same dimensions apply to Model 100 and KSH Series).
Figure 3. Alcove Clearances

Table of Contents

Related product manuals