EasyManua.ls Logo

KRAUSE STABILO - Maximum Platform Height; STABILO Folding Scaffold Preparation

KRAUSE STABILO
Print Icon
To Next Page IconTo Next Page
To Next Page IconTo Next Page
To Previous Page IconTo Previous Page
To Previous Page IconTo Previous Page
Loading...
10
3. Maximum height to hook platform in
The maximum height to hook platform in is 1,00m!
It can be hooked in on all rungs up to this height
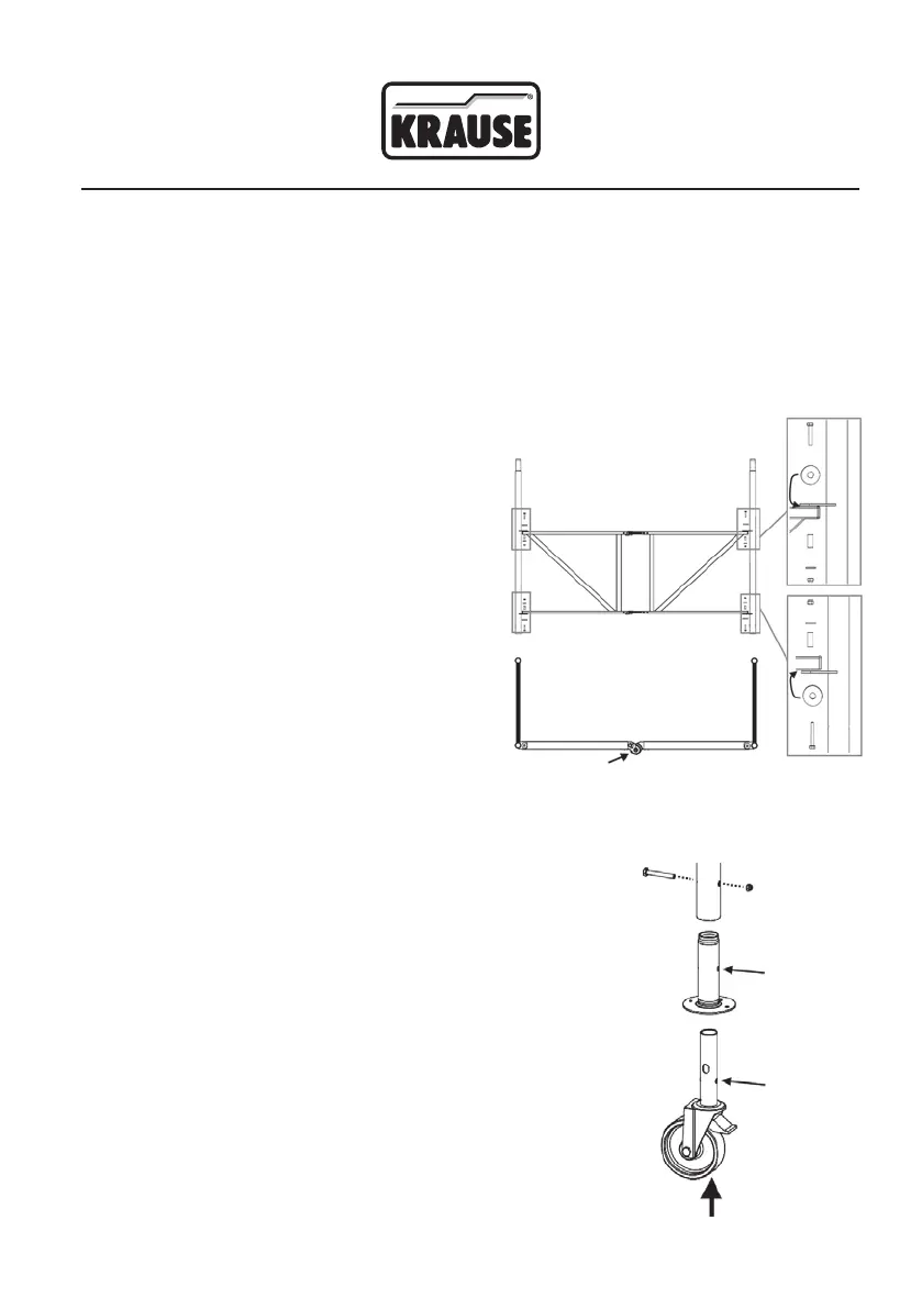
4.2 Installation of castors
1. Push the footplates over the shaft of the castors.
Make sure that the boreholes are equally and visibly
aligned.
2. Insert both parts in the frame tube. Boreholes are
equally and visibly aligned again
3. Secure all together with the hexagon screw and the
nut by using two screw drivers 13 mm.
4.1 Assembly of Folding Unit
Necessary tools:
2 ring or open end spaners 13 mm.
Install the Folding Unit between the two
Vertical Frames. Watch out that the overlap
of the hinge will show to the outside!
1. At first insert the hull into the bore
whole of the Folding Unit.
2. Push the bigger flat washer between
the flap of the Vertical Frame and the
Folding Unit.
3. Push the screw through both parts.
4. Screw the smaller flat washer
and the nut. Clamping torque: 20 Nm
4. Preparation STABILO Folding Scaffold
View from above
Hinge shows to the outside

Related product manuals