EasyManua.ls Logo

Krushr F86/024 - Door Mounting Guide

Default Icon
34 pages
Print Icon
To Next Page IconTo Next Page
To Next Page IconTo Next Page
To Previous Page IconTo Previous Page
To Previous Page IconTo Previous Page
Loading...
US/Can
17
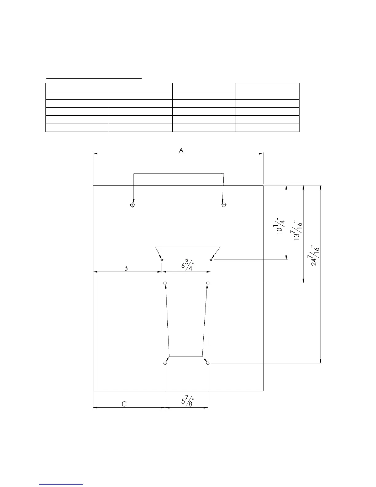
Door Mounting Guide
HANDLE THROUGH HOLES
(POSITION AS APPROPRIATE)
DOOR RIGIDITY BRACKET
POSITIONS
(PILOT HOLE FOR SCREWS ONLY NOT THRU
HOLES)
HOOK
PLATE
SECURING
POINTS
(PILOT HOLE FOR
SCREWS ONLY
NOT THRU
HOLES)
Rear of door shown
Model
A
B
C
F86/012
11 6/8
2 8/16
2 15/16
F86/015
14 7/8
4 1/16
4 8/16
F86/018
17 7/8
2 11/16
3 2/16
F86/021
20 7/8
4 3/16
4 10/16
F86/024
23 7/8
9 11/16
10 2/16