EasyManua.ls Logo

Krushr F86/024 - Page 33

Default Icon
34 pages
Print Icon
To Next Page IconTo Next Page
To Next Page IconTo Next Page
To Previous Page IconTo Previous Page
To Previous Page IconTo Previous Page
Loading...
US/Can
33
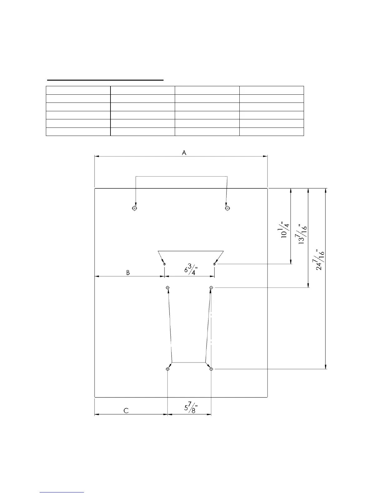
Guide de fixation de porte
POIGNÉE AU TRAVERS DES TROUS
(POSITION COMME APPROPRIÉ)
POSITION DU CROCHET DE
RIGIDITÉ DE PROTE
(TROU PILOTE POUR LES VIS SEULEMENT
NON TRANSPERCANT)
POINT DE
FIXATION
POUR LA
PLAQUE DE
CROCHET
(TROU PILOTE
POUR LES VIS
SEULEMENT NON
TRANSPERCANT)
Indiqué à l'arrière de la porte
Modèle
A
B
C
F86/012
11 6/8
2 8/16
2 15/16
F86/015
14 7/8
4 1/16
4 8/16
F86/018
17 7/8
2 11/16
3 2/16
F86/021
20 7/8
4 3/16
4 10/16
F86/024
23 7/8
9 11/16
10 2/16