EasyManua.ls Logo

la Minerva PACK10 - Page 27

Default Icon
32 pages
Print Icon
To Next Page IconTo Next Page
To Next Page IconTo Next Page
To Previous Page IconTo Previous Page
To Previous Page IconTo Previous Page
Loading...
27
POS. ARCH.:
1
2
3 6
7
45
8
A
B
C
D
E
F
A
B
C
D
E
F
DENOMINAZIONE: DESCRIZIONE:
MODIFICHE:
A
B
C
D
E
F
G
DATA:
PROPRIETA’ INTERNA - RIPRODUZIONE VIETATA
DISEGNO N°:
DISEGNATORE:
NOTE:
FOGLIO:
07/04/05
A.S.C.
-
1 DI 1
la Minerva
®
di Chiodini Mario s.r.l.
Bologna - Italy
PACK 10 - PACK 16 - PACK 20
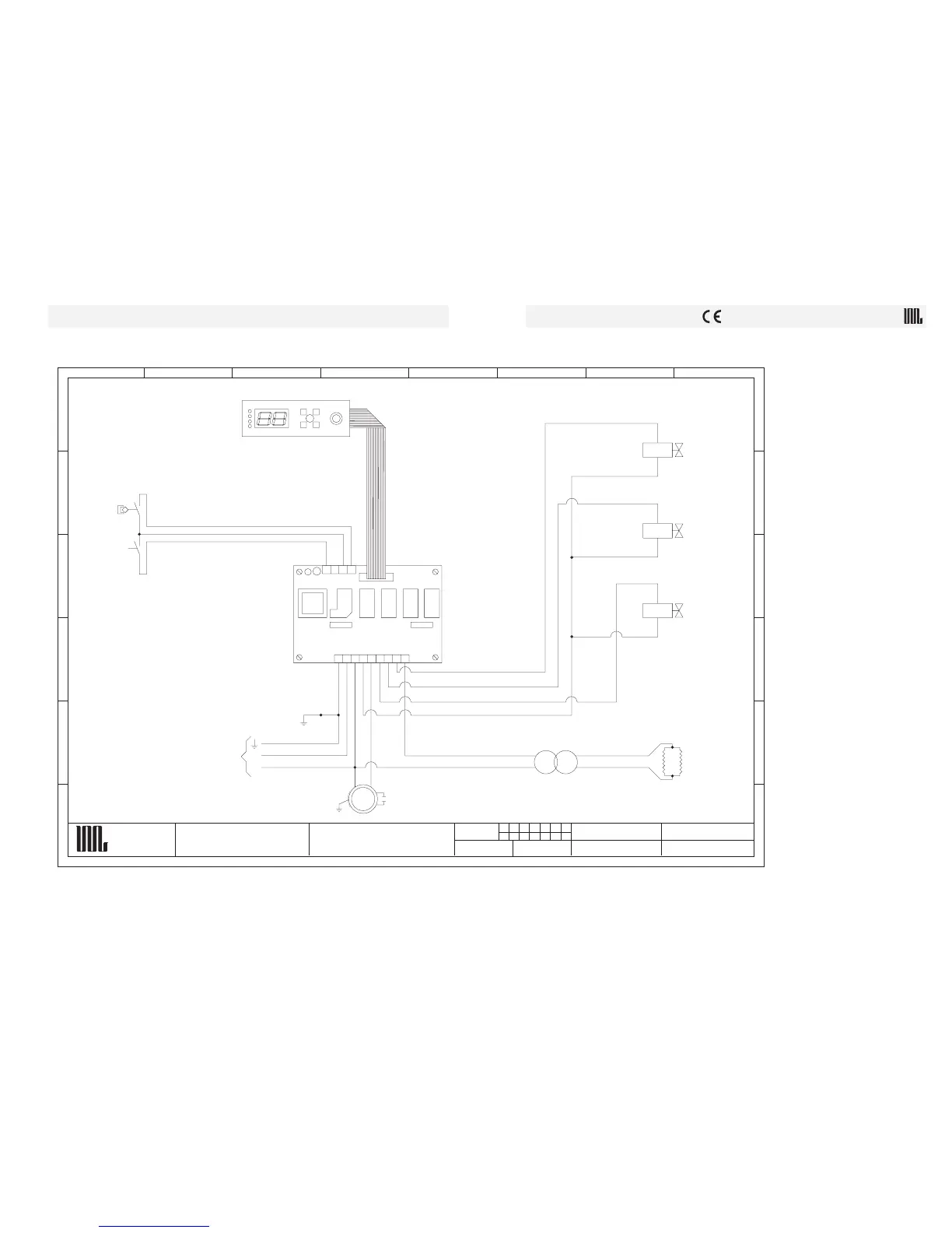
Schema Collegamenti ele. Scheda MF / Layout of the Card MF / Schéma de la Carte MF /
Anschlussplan Platine MF / Ledningsdiagram MF
LEGENDA
P1 - COPERCHIO VASCA
PC1 - PRESSOSTATO GAS
EV1 ELETTROVAL.RIENTRO ATMOSFERA
EV2 ELETTROVAL.RIENTRO GAS
EV3 ELETTROVAL.RIENTRO VUOTO
MT -MOTORE POMPA
TR - TRASFORMATORE
RST - RESISTENZA SALDATURA E TAGLIO
SCHEMA COLL.ELE.SCHEDA LA MINERVA
230/1/50
P1
1
2
3
4
5
6
7
8
9
3
2
1
M
1~
PC1
L
N
PE
MT
C
230/1/50
SCHEDA COMANDO
EV1
EV3
RST
TR
V230 V18 - PACK 10 - 16
V24 - PACK 20
PACK 10 - kW 0,37: HP 1/2
PACK 16 - kW 0,55: HP 3/4
PACK 20 - kW 0,75÷0,9: HP 1,1/5
EV2
4
Pbar
SCHEDA
POTENZA