EasyManua.ls Logo

Laars DP2000 - Time Clock Installation; Special Pressure Switch; Section 3.; Operating Instructions

Laars DP2000
20 pages
Print Icon
To Next Page IconTo Next Page
To Next Page IconTo Next Page
To Previous Page IconTo Previous Page
To Previous Page IconTo Previous Page
Loading...
Page 10
Attach a ground wire to the green lug in the switch
box as shown in the wiring diagram. A separate lug is
on the exterior of the heater for a system bonding
conductor as required by Article 680 of the National
Electric Code, ANSI C1 -1975.
The XL-3 is factory-wired for a time clock.
2J. Time Clock Installation
A time clock which will automatically turn the
pool system OFF and ON provides convenience and
safety, and is more economical. If a time clock is
installed, it is recommended that it include a Fireman
Switch. The Fireman Switch will shut down the heater
about 20 minutes before the filter pump shuts down.
This allows the water flow to carry away residual heat
in the firebox without damage to the heater or other
parts of the system.
Field install high temperature wires (150°C) from
the Fireman Switch. Run the wires to the heater
through the knockout on the right side of the heater
body. Connect them to the two wires joined with a
wirenut in the control compartment. The wirenut has a
tag on it carrying wiring instructions. Position the
field-installed wires away from the inner panel.
2K. Special Pressure Switch
A special pressure switch is required if the XL-3
is installed more than 3 feet below the surface of the
pool. Consult a Laars representative or contact the
factory.
IMPORTANT: Before starting the heater on a
new installation, relieve all air from the system by
running the filter pump for at least 15 minutes.
SECTION 3.
Operating Instructions
3A. Start-up Procedure
In a new installation, always run the filter pump
with the heater turned off long enough to completely
clean the pool water. This will remove any residue left
from construction. Clean the filter before starting the
heater.
Before starting the oil burner, check the wiring to
make sure there are no loose connections. Check all
fuel line connections for tightness. Open the fuel
shutoff valves at the heater and the tank.
Caution
Do not try to light the burner if excessive oil has
accumulated in the firebox, or when the heater is
full of vapors.
A QUALIFIED SERVICE TECHNICIAN
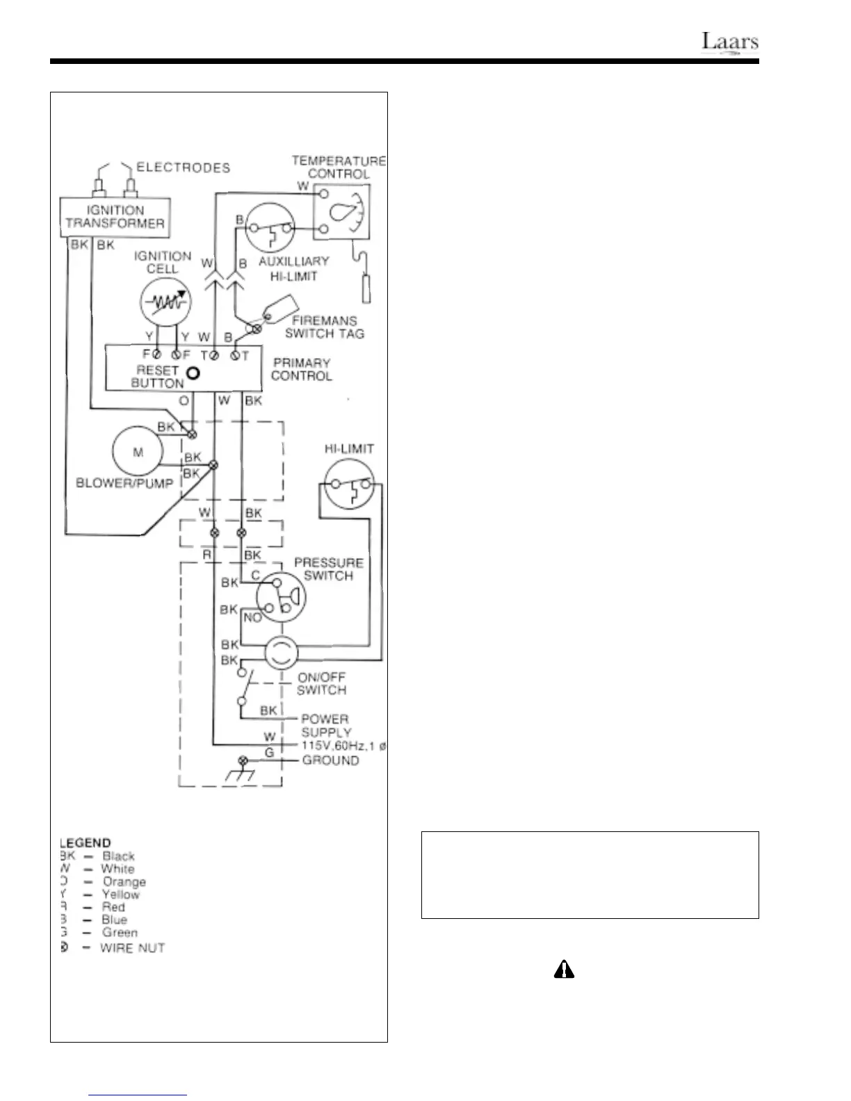
Figure 16. Wiring Diagram, 60 Hz Model.
DP2000
DP3000
OIL FIRED
POOL HEATER

Related product manuals