EasyManua.ls Logo

Labconco 3980200 - Page 64

Default Icon
93 pages
Print Icon
To Next Page IconTo Next Page
To Next Page IconTo Next Page
To Previous Page IconTo Previous Page
To Previous Page IconTo Previous Page
Loading...
59
Chapter 7: Accessorizing and Modifying Your Filtered Enclosure
Used With Catalog # Description Shipping Wt. (lbs./kg.)
3716000 Remote Blower, 115V, 60 Hz. 4.4
amps
35/16
Purifier Class I
3716001
Remote Blower, 115/230V, 50 Hz,
5.6/2.8 amps
35/15
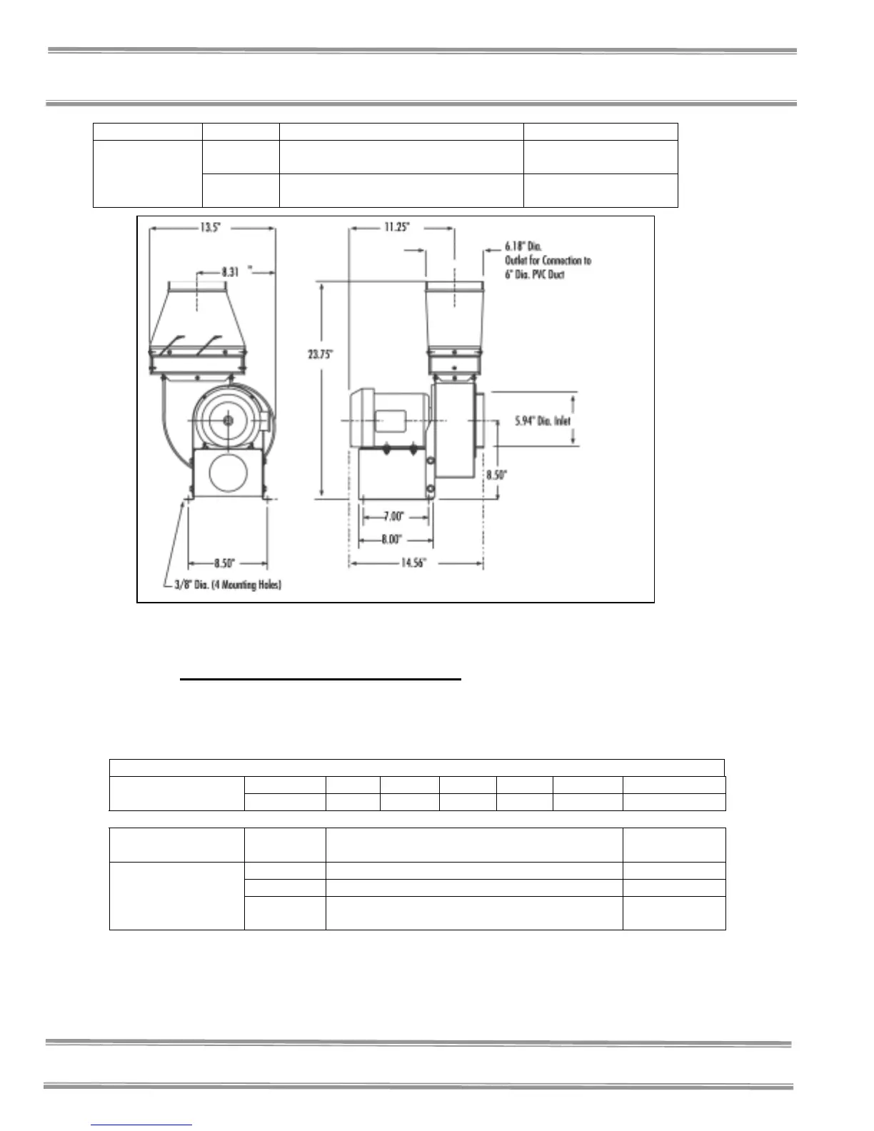
Figure 7-1
For Purifier HEPA Filtered Enclosure
Has a 1/4 hp direct drive motor and corrosion-resistant epoxy-
coated steel housing and wheel with blower inlet of 6.00" ID.
Outlet dimensions are 4.25" x 7.38" OD.
CFM @ Static Pressure-Inches of H
2
O
S.P. 0.0" 0.125" 0.25" 0.50" 0.75" 0.87"
CFM 595 560 515 420 300 167
Catalog # Description
Shipping Wt.
(lbs./kg.)
4863500 Remote Blower, 115 V, 60 Hz. 4.4 amps 35/16
4863501 Remote Blower, 115/230 V, 50 Hz, 5.6/2.8 amps 35/16
Used with Purifier
HEPA Filtered
Enclosure
7053501
Explosion-Proof Remote Blower, 115 V, 60 Hz,
4.4 amps
40/18

Table of Contents

Related product manuals