EasyManua.ls Logo

Labounty MSD 2500 - Hydraulic Schematics

Default Icon
52 pages
Print Icon
To Next Page IconTo Next Page
To Next Page IconTo Next Page
To Previous Page IconTo Previous Page
To Previous Page IconTo Previous Page
Loading...
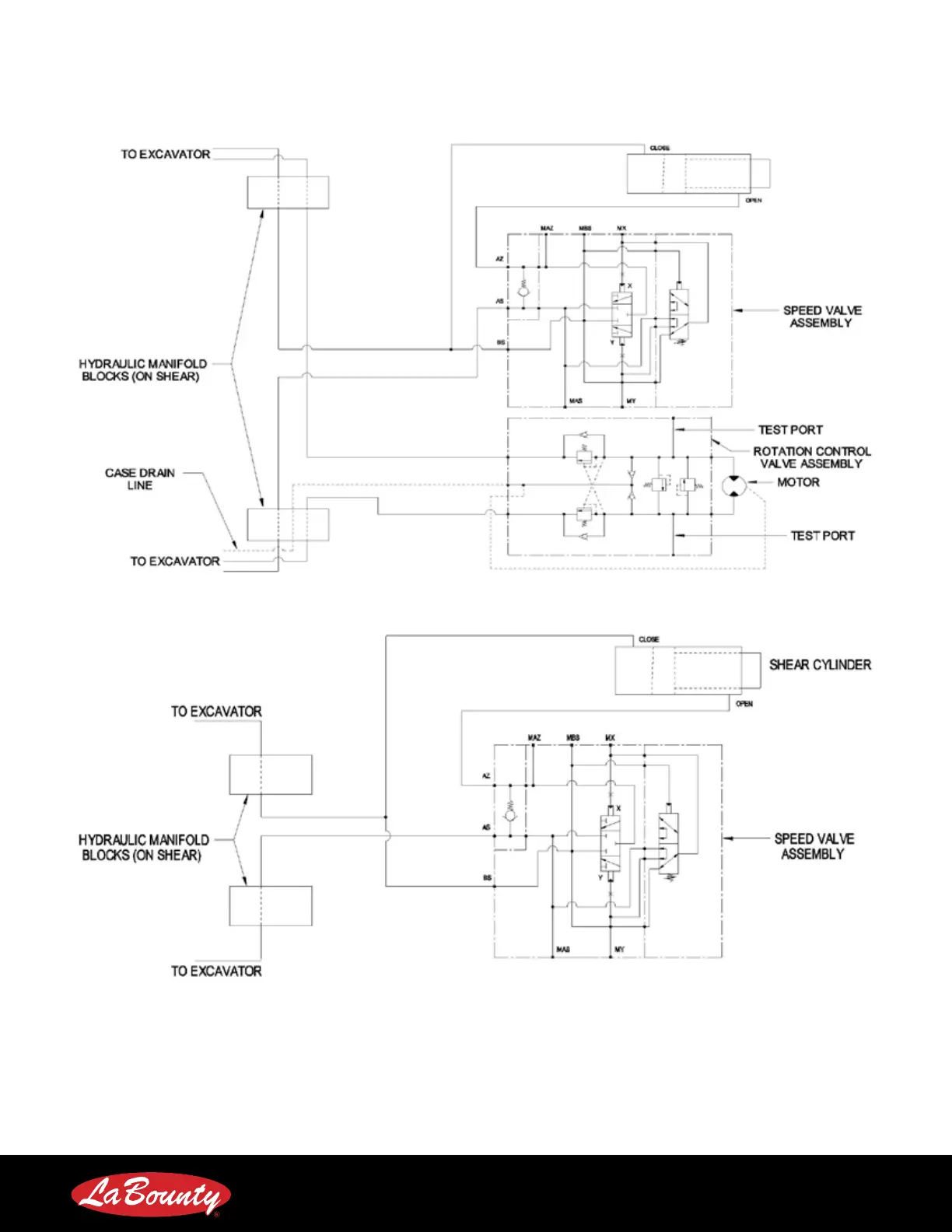
MSD Legend Series Operation & Maintenance Manual | 49
HYDRAULIC SCHEMATICS
HYDRAULIC SCHEMATIC - STANDARD ROTATING SHEARS
HYDRAULIC SCHEMATIC - STANDARD NON-ROTATING SHEARS

Related product manuals