EasyManua.ls Logo

lamber 01FEKS - Page 19

lamber 01FEKS
33 pages
Print Icon
To Next Page IconTo Next Page
To Next Page IconTo Next Page
To Previous Page IconTo Previous Page
To Previous Page IconTo Previous Page
Loading...
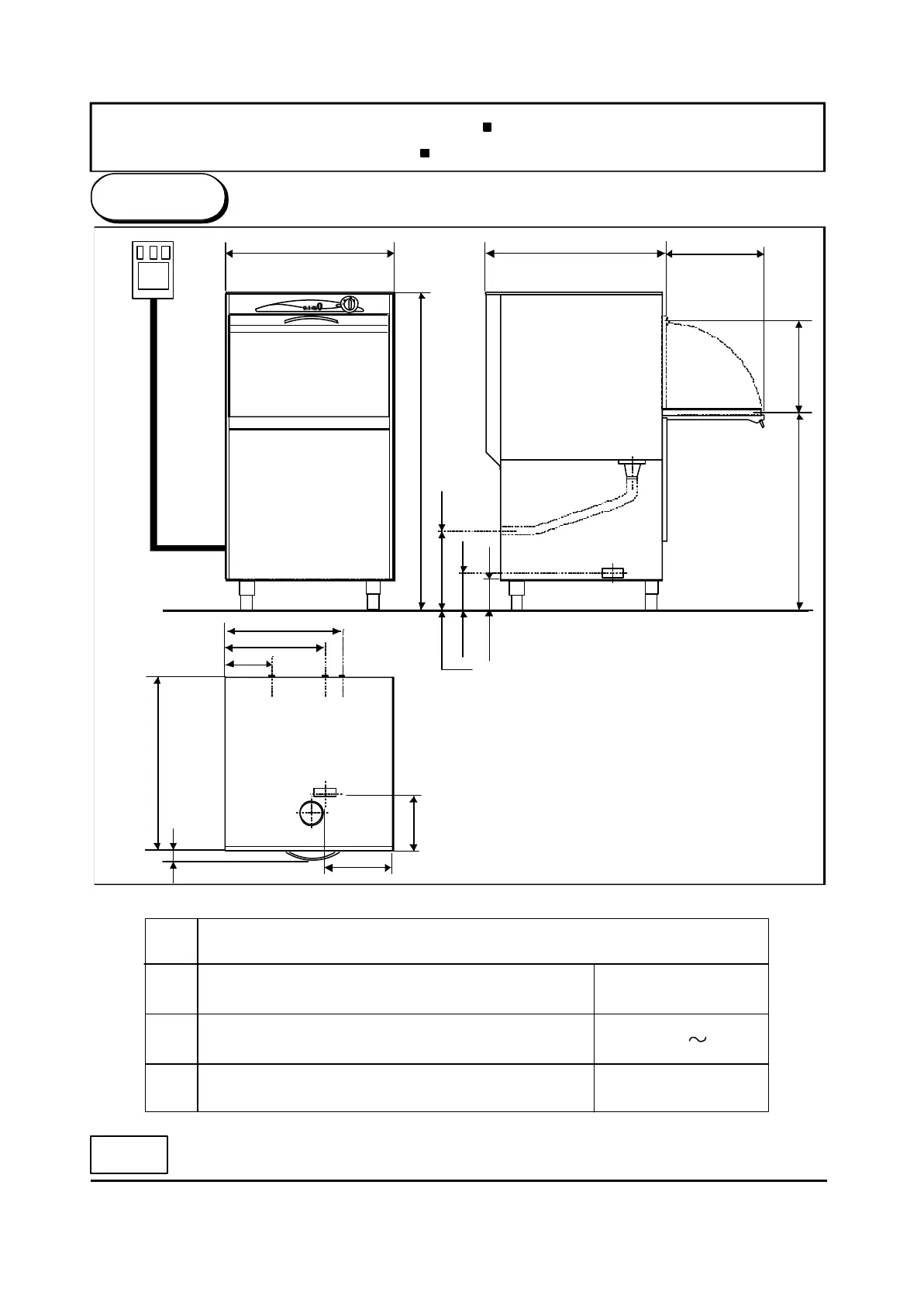
SCHEMA ALLACCIAMENTI
INSTALLATION
INSTALLATION
INSTALLATIONSBLATT
E
L
S
Elettrovalvola carico - Electrovanne chargement
Water inlet - Wasseranschluß
Linea elettrica - Branchement eléctrique
Electric input - Netzanschluß
Tank drain - Wasserablauf
3/4" G
32 mm - 1"1/4 G
Dis.2
Scarico acqua - Evacuation Eau
L
S
E
S
S
E
600 650 430
1370
400850
200
170
380
650
190
A
A
Altezza massima per scarico a muro - Hauteur maximale pour vidange à mur
L
S
E
380
340
200
260
400 V3N 50Hz
01F
35
Maximum height of drain from floor - Maximale Bodenhöhe für Wandwasserablauf

Related product manuals