EasyManua.ls Logo

lamber NSP1206 - Installation and Schematics; Installation Dimensions and Layout; Connection Schematics

lamber NSP1206
Print Icon
To Next Page IconTo Next Page
To Next Page IconTo Next Page
To Previous Page IconTo Previous Page
To Previous Page IconTo Previous Page
Loading...
WASH
RINSE
1
2
33
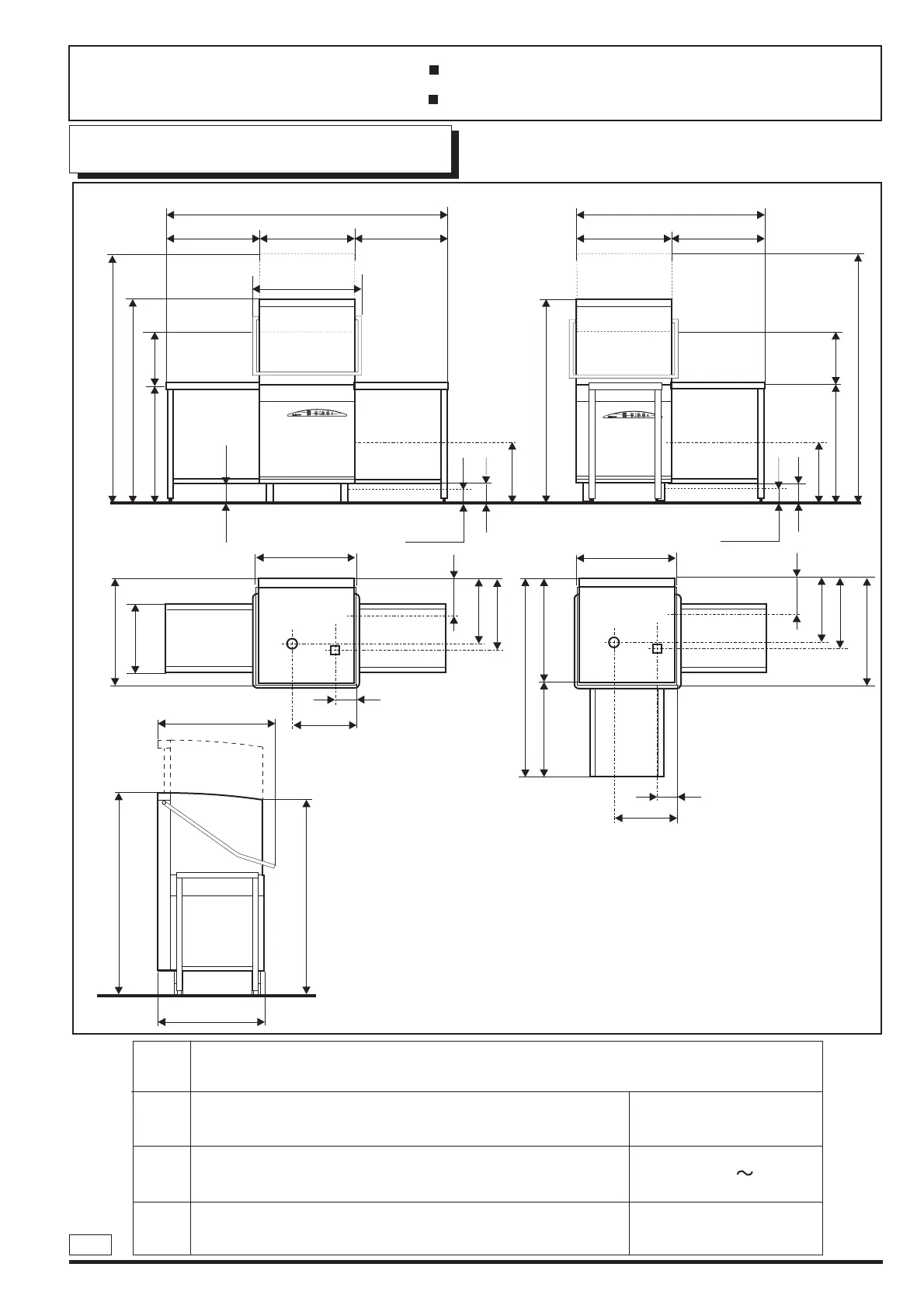
Linear version
Corner version
Dis.2
SCAL21ek -RGB-holspa-2012
E
L
S
3/4" G
32 mm - 1"1/4 G
A
400 V3N 50Hz
200
L
400
180
870
380
1460
1840
2000
700 700600
710
200
150
400
870
380
1840
1460
600 700
1300
L
E
E
A
150
A
245
L
S
E
130
410
505
460
510
765
620
L
620
755
765
700
1455
245
S
E
130
410
505
460
1460
1410
845
765
WASH
RINSERINSE
1
2
33
INSTALLATION INSTALLATIESCHEMA
INSTALLATION
ESQUEMA CONEXIONES
Electrovanne chargement - Wateraansluiting
Water inlet - Electroválvula de entrada agua
Branchement eléctrique - Elektro-aansluiting
Electric input - Línea eléctrica
Drain -
Desagüe agua
Evacuation Eau - Waterafvoer
Hauteur maximale pour vidange à mur - Maximale hoogte voor wandwaterafvoer
Maximum height for drain to wall - Altura máxima para desagüe
L21-RGB / L21-RGB-add

Related product manuals