EasyManua.ls Logo

lamber S510 - Installation; Connection Scheme

lamber S510
21 pages
Print Icon
To Next Page IconTo Next Page
To Next Page IconTo Next Page
To Previous Page IconTo Previous Page
To Previous Page IconTo Previous Page
Loading...
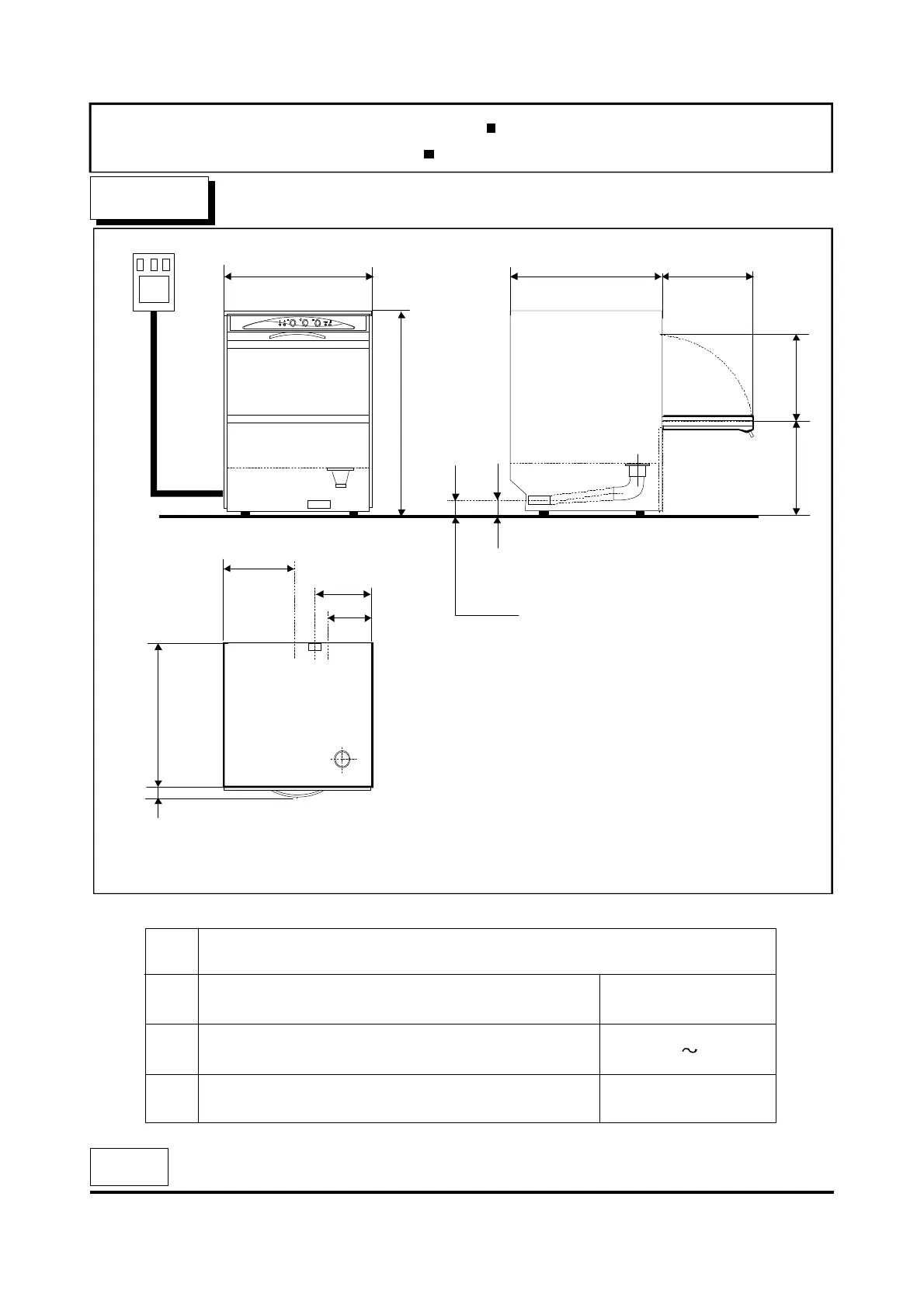
SCHEMA ALLACCIAMENTI
INSTALLATION
INSTALLATION
INSTALLATIONSBLATT
E
L
S
Elettrovalvola carico - Electrovanne chargement
Water inlet - Wasseranschluß
Linea elettrica - Branchement électrique
Electric input - Netzanschluß
Drain - Ablauf
3/4" G
32 mm - 1"1/4 G
Dis.2
Scarico acqua - Evacuation Eau
L
S
E
S
E
535
555 330
300
50
50
555
A
A
Altezza massima per scarico a muro - Hauteur maximale pour vidange à mur
Maximum height for drain to wall - Maximale Bodenhöhe für Wandwasserablauf
160
230 V 50Hz
S 510
L
S
E
770
350
310
220
35

Other manuals for lamber S510

Related product manuals