EasyManua.ls Logo

Lennox ARIA EC Series - ARIA T20 - 4 Row Coil - Left Hand Configuration

Lennox ARIA EC Series
40 pages
To Next Page IconTo Next Page
To Next Page IconTo Next Page
To Previous Page IconTo Previous Page
To Previous Page IconTo Previous Page
Loading...
ARIA EC-AGU-0909-E Page 32
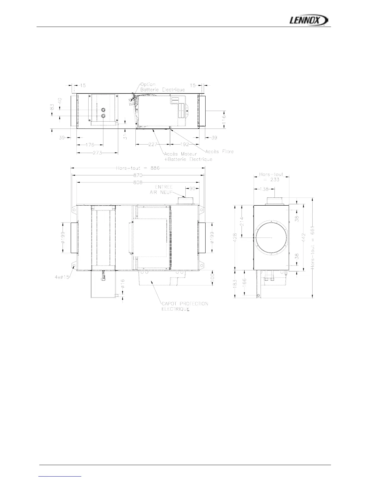
ARIA EC 20 with 4 row coil - Left hand configuration

Related product manuals