EasyManua.ls Logo

Lennox BAC020SNM

Lennox BAC020SNM
137 pages
To Next Page IconTo Next Page
To Next Page IconTo Next Page
To Previous Page IconTo Previous Page
To Previous Page IconTo Previous Page
Loading...
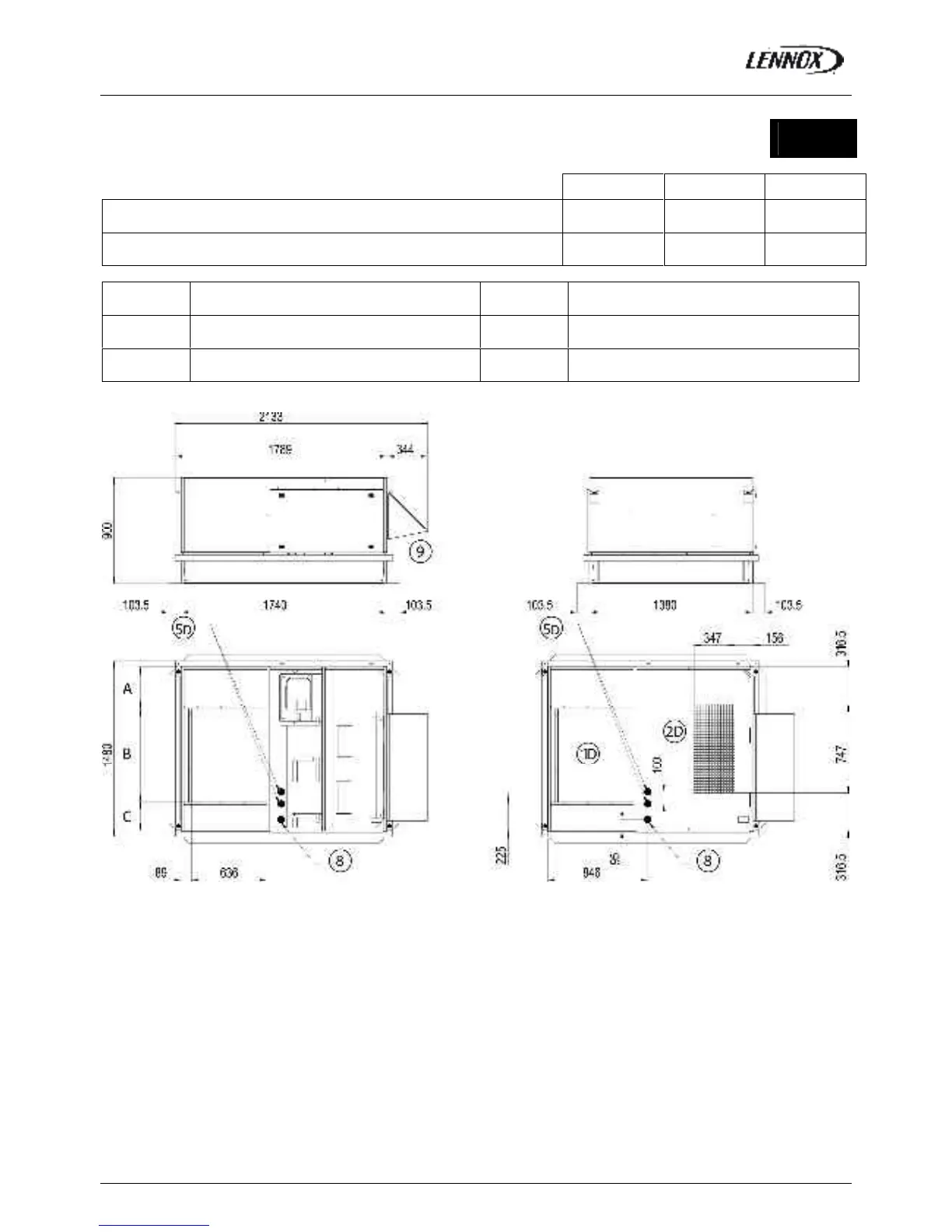
EXHAUST VERTICAL ROOFCURB
BALTIC R410A-IOM-0708-E Page 47
035
A B C
BAC / BAH without auxiliary heating 632 400 348
BAG / BAM or BAC / BAH with auxiliary heating 350 790 240
1D Down supply air 4D Down main power entry
2D Down return air 5D Down hot water entry
8 Main power entry 9 Exhaust

Table of Contents

Related product manuals