EasyManua.ls Logo

Lennox BAH035SNM - Page 35

Lennox BAH035SNM
137 pages
Print Icon
To Next Page IconTo Next Page
To Next Page IconTo Next Page
To Previous Page IconTo Previous Page
To Previous Page IconTo Previous Page
Loading...
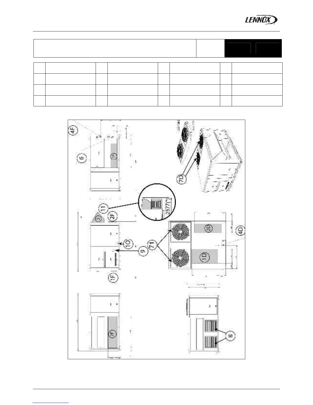
ARRANGEMENT DRAWINGS
BALTIC R410A-IOM-0708-E Page 34
WITH OPTIONS
(Return and supply opening shown on this drawing do apply to BAC/BAH
with electric heater or hot water coil )
BAG
BAM
045 055
1D Down supply air 3 Fresh air 8 Extraction
1F Front supply air 4F Front main power entry 6 Gas supply inlet 9 Smoke outlet
2D Down return air 4D
Down main power
entry
71 Outdoor coil inlet 10 Condensate drainage
2F Front return air 70 Outdoor coil outlet
(*) Total Length (unit + option)

Table of Contents

Related product manuals