EasyManua.ls Logo

Lennox EL196UHE - Page 29

Lennox EL196UHE
89 pages
Print Icon
To Next Page IconTo Next Page
To Next Page IconTo Next Page
To Previous Page IconTo Previous Page
To Previous Page IconTo Previous Page
Loading...
Page 29
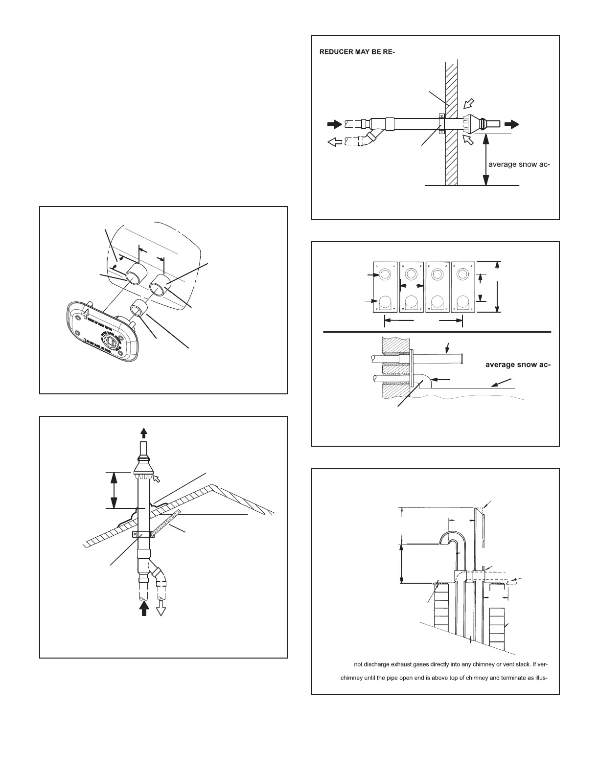
7 - If intake and exhaust piping must be run up a side
wall to position above snow accumulation or other
obstructions, piping must be supported. At least one
bracket must be used within 6” from the top of the
elbow and then every 24” (610mm) as shown in
Figure 42, to prevent any movement in any direction.
When exhaust and intake piping must be run up an
outside wall, the exhaust piping must be terminated
ZLWKSLSHVL]HGSHU7$%/(7KHLQWDNHSLSLQJPD\
be equipped with a 90° elbow turndown. Using
turndown will add 5 feet (1.5m) to the equivalent
length of the pipe.
8 - A multiple furnace installation may use a group of up
WRIRXUWHUPLQDWLRQVDVVHPEOHGWRJHWKHUKRUL]RQWDOO\
as shown in Figure 40.
2” EXTENSION FOR 2” PVC
PIPE1” EXTENSION FOR 3”
PVC PIPE
1-1/2” ACCELERATOR
FURNACE
EXHAUST
PIPE
FURNACE
INTAKE
PIPE
4''
GLUE EXHAUST
END FLUSH INTO
TERMINATION
FLAT
SIDE
FLUSH-MOUNT SIDE WALL TERMINATION KIT
51W11
(
US
)
or 51W12
(
Canada
)
Figure 37
DIRECT VENT CONCENTRIC ROOFTOP TERMINATION
71M80, 69M29 or 60L46 (US)
44W92 or 44W93 (Canada)
Minimum
Above Average
Snow
Accumulation
SHEET METAL STRAP
(Clamp and sheet metal strap
must be field−installed to support
the weight of the termination kit.)
FLASHING
(Not Furnished)
CLAMP
FIELD-PROVIDED
REDUCER MAY BE REQUIRED
TO ADAPT LARGER VENT
PIPE SIZE TO TERMINATION
INTAKE
12” (305mm)
Figure 38
12” (305mm) Min.
above grade or
cumulation.
DIRECT VENT CONCENTRIC WALL TERMINATION
71M80, 69M29 or 60L46 (US)
41W92 or 41W93 (Canada)
INTAKE
AIR
EXHAUST
AIR
INTAKE
AIR
INTAKE
AIR
EXHAUST
AIR
OUTSIDE
WALL
GRADE
CLAMP
(Not Furnished)
FIELD-PROVIDED
QUIRED TO ADAPT
LARGER VENT PIPE
SIZE TO TERMINATION.
Figure 39
EXHAUST
VENT
INTAKE
AIR
5-1/2”
(140mm)
Front View
12”
(305mm)
5”
(127mm)
18” MAX.
(457mm)
EXHAUST VENT
INTAKE
AIR
OPTIONAL VENT TERMINATION FOR MULTIPLE UNIT
INSTALLATION OF DIRECT VENT WALL TERMINATION KIT
(30G28 or 81J20)
Inches (mm)
Side View
12” (305mm) Min.
above grade or
cumulation.
optional intake elbow
Figure 40
DIRECT VENT APPLICATION
USING EXISTING CHIMNEY
NOTE - Do
tical discharge through an existing unused chimney or stack is required, insert piping
inside
trated. In any exterior portion of chimney, the exhaust vent must be insulated.
8” - 12”
(203mm - 305mm)
3” - 8”
(76mm-
203mm)
3” - 8”
(76mm-
203mm)
STRAIGHT-CUT OR
ANGLE-CUT IN DIRECTION
OF ROOF SLOPE *
SHOULDER OF FITTINGS
PROVIDE SUPPORT
OF PIPE ON TOP PLATE
ALTERNATE
INTAKE PIPE
INTAKE PIPE
INSULATION (optional)
EXTERIOR
PORTION OF
CHIMNEY
INSULATE
TO FORM
SEAL
SHEET
METAL TOP
PLATE
Minimum 12” (305MM)
above chimney top
plate or average snow
accumulation
Figure 41

Related product manuals