EasyManua.ls Logo

Lennox G26 Series - Vent Termination Configurations; G26 Venting in Existing Chimney

Lennox G26 Series
53 pages
To Next Page IconTo Next Page
To Next Page IconTo Next Page
To Previous Page IconTo Previous Page
To Previous Page IconTo Previous Page
Loading...
Page 25
FIGURE 35
EXHAUST
VENT
INTAKE VENT
5−1/2
(140)
Front View
12
(305)
5
(127)
18 MAX.
(457)
EXHAUST VENT
INTAKE
VENT
Side View
OPTIONAL VENT TERMINATION FOR
MULTIPLE UNIT INSTALLATION
WALL TERMINATION KIT WTK
Inches (mm)
FIGURE 36
12 MIN.
(305)
Above Grade
COVER EXHAUST
VENT WITH
1/2 (13)
FOAM
INSULATION
Front View
Side View
VENT TERMINATIONS
MODEL WTK WALL TERMINATION KIT (30G28)
EXTENDED VENT FOR GRADE CLEARANCE
Inches (mm)
ÉÉÉÉÉÉÉÉÉÉ
ÉÉÉÉÉÉÉÉÉÉ
5
(127)
5-1/2
(140)
EXHAUST
AIR
INTAKE
AIR
GRADE
12
(305)
ÉÉÉÉÉÉÉÉÉÉÉ
8 (203)
Minimum
12 (305)
Minimum
ABOVE GRADE
INTAKE
AIR
EXHAUST
AIR
GRAD
E
FIGURE 37
VENT TERMINATIONS
MODEL WTKX (30G79)
EXTENSION RISER FOR GRADE CLEARANCE
4
(102)
8 MIN.
(203)
EXHAUST VENT
INTAKE
VENT
GRADE
GRADE
EXHAUST
VENT
INTAKE
VENT
34
(864)
12
(305)
9
(229)
NOTE−Enclosed exhaust pipe
is insulated with 1/2" (13mm)
foam insulation. If intake and
exhaust pipes are reversed, slit
and remove foam insulation
and reapply to other vent. Ex-
haust vent must be insulated.
Front View
Side View
OUTSIDE WALL
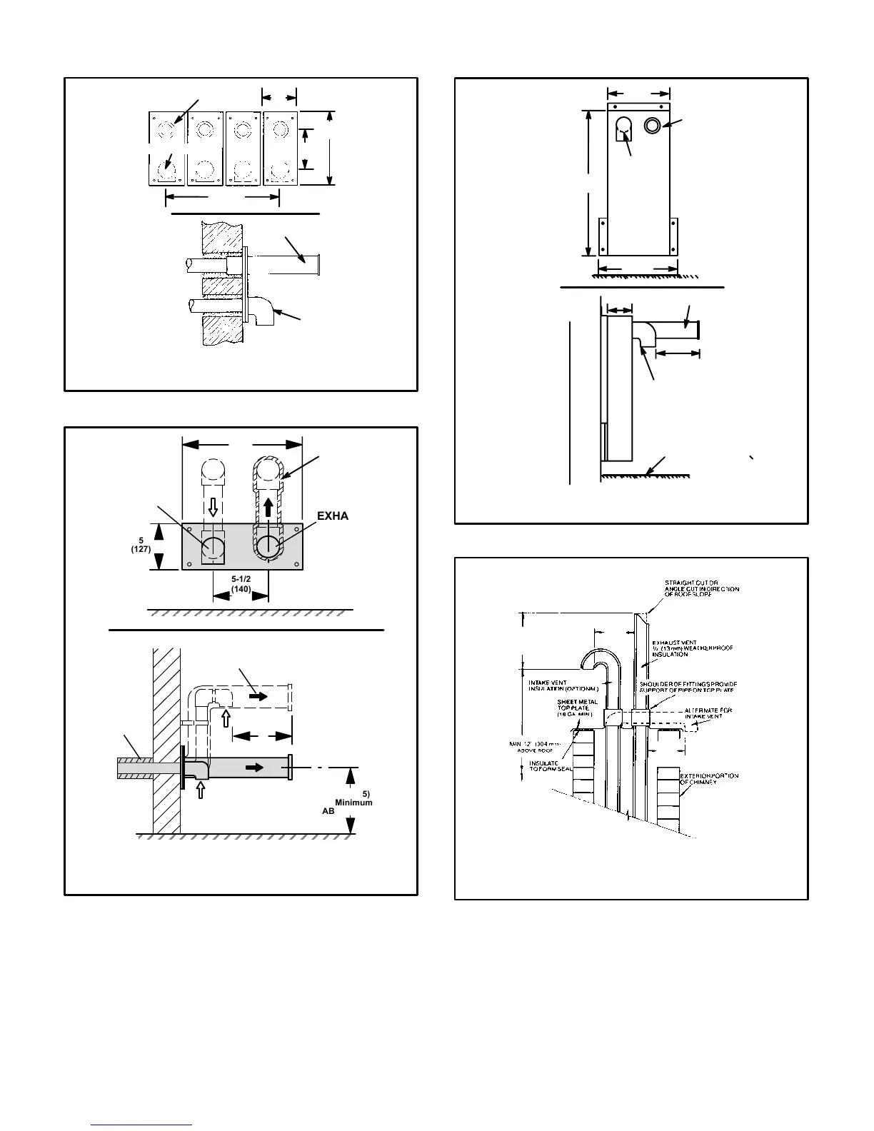
G26 VENTING IN EXISTING CHIMNEY
NOTE−Do not discharge exhaust gases directly into any chimney or vent stack. If verti-
cal discharge through an existing unused chimney or stack is required, insert piping
inside chimney until the pipe open end is above top of chimney and terminate as illus-
trated. In any exterior portion of chimney, the exhaust vent must be insulated. An alter-
nate method is to fill the chimney with vermiculite or equal to take advantage of its
acoustic and thermal properties.
FIGURE 38
8" − 12"
(203mm − 305mm)
3" − 8"
(76mm−
203mm)
3" − 8"
(76mm−
203mm)

Table of Contents

Other manuals for Lennox G26 Series

Related product manuals