EasyManua.ls Logo

Lennox GCS16-413-100

Lennox GCS16-413-100
134 pages
To Next Page IconTo Next Page
To Next Page IconTo Next Page
To Previous Page IconTo Previous Page
To Previous Page IconTo Previous Page
Loading...
Page 51
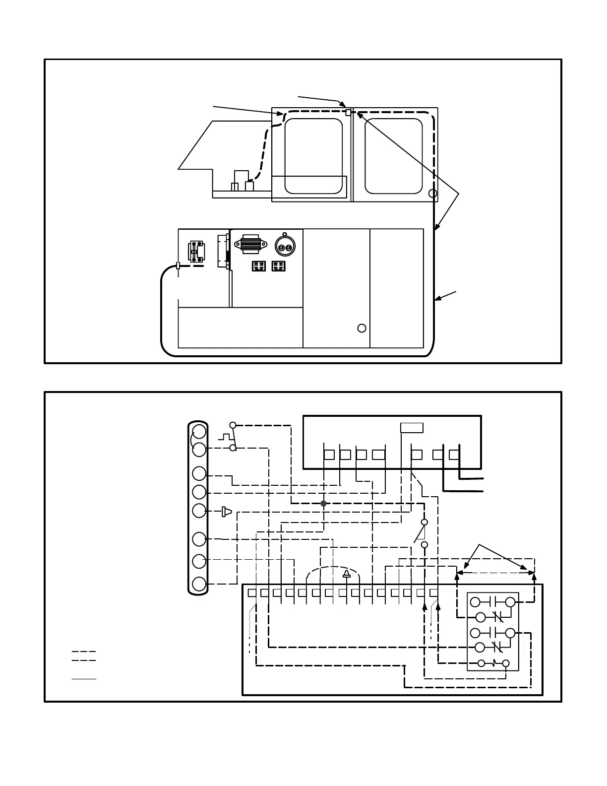
FIGURE 58
HEATING
COMPARTMENT
COMPRESSOR
COMPARTMENT
CONTROL BOX
REMD16(M)-41
ECONOMIZER
GCS16H UNIT
(B" SECTION WIRING DIAGRAM)
J3/P4
GCS16H TO REMD16(M)-41 ECONOMIZER
FIELD WIRING - WIRE ROUTING
ECONOMIZER
PIGTAILS
RDE16-41 TRANSITION
SEE C19 TO B34
WIRING DIAGRAM
(BACK OF THIS
MANUAL)
WIRING HARNESS
SUPPLIED
WITH RDE16-41
ECONOMIZER HARNESS
FIGURE 59
RH
RC
G
W1
W2
Y1
Y2
X
6 10 3 1 15 4 12 13 14 2 8 9 5 11 7
RGY1W1
ACC
CL1L2
GCS16H
J3 ECONOMIZER JACK
INSIDE RDE16-41 TRANSITION
MATES TO ECONOMIZER PLUG P4
GCS16H TO REMD16-41 or REMD16M-41 ECONOMIZER
FIELD WIRING
INDOOR
THERMOSTAT
THERMOSTAT TO ECONOMIZER - 2 WIRES
UNIT TO ECONOMIZER - 5 WIRES
UNIT TO THERMOSTAT - 3 WIRES
SEE C19 TO B34
WIRING DIAGRAM
(BACK OF THIS MANUAL)
6
4
3
1
9
7
CMC3-1
CLOCK
FIELD WIRING
FIELD WIRING REQUIRED
FOR NIGHT SETBACK
FACTORY WIRING
K11
K11 OPTIONAL
REQUIRED IF NIGHT
SETBACK IS DESIRED.
REMOVE (SPLICE INTO)
FACTORY WIRE.
S12
NIGHT STAT
NOTE - ALL FIELD WIRING IS
IN ADDITION TO FACTORY
WIRING AND UNIT FIELD WIR
ING EXCEPT WHERE NOTED.
ECONOMIZER
PIGTAILS

Related product manuals