EasyManua.ls Logo

Lennox GCS16-413-100 - Page 82

Lennox GCS16-413-100
134 pages
Print Icon
To Next Page IconTo Next Page
To Next Page IconTo Next Page
To Previous Page IconTo Previous Page
To Previous Page IconTo Previous Page
Loading...
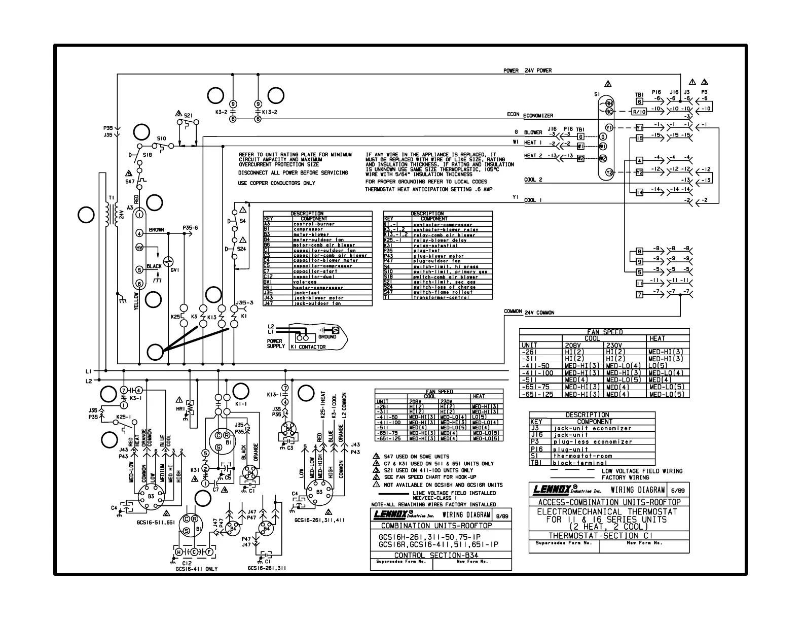
C1diagramwith B34 diagram
basic thermostat with commercial single-phase GCS16
Page 82
1
2
3
4
5
6
7
4
8
9
10
7
6

Related product manuals