EasyManua.ls Logo

Lennox GCS16-413-100 - Page 85

Lennox GCS16-413-100
134 pages
Print Icon
To Next Page IconTo Next Page
To Next Page IconTo Next Page
To Previous Page IconTo Previous Page
To Previous Page IconTo Previous Page
Loading...
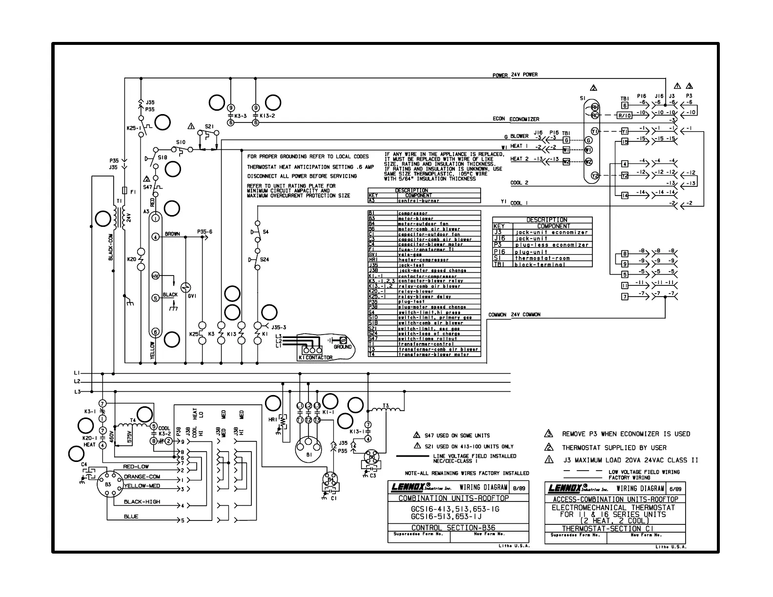
C1diagram
electromechanical thermostat without economizer
connected to 460V or 575V - 3ph. commercial unit
with B36 diagram
Page 85
1
2
3
4
55
6
7
8
9
10
11
12
13
14
Unit Footnotes
Thermostat Footnotes
10
9

Related product manuals