EasyManua.ls Logo

Lennox GCS16-653-125 - Page 13

Lennox GCS16-653-125
134 pages
Print Icon
To Next Page IconTo Next Page
To Next Page IconTo Next Page
To Previous Page IconTo Previous Page
To Previous Page IconTo Previous Page
Loading...
Page 13
START
CAPACITOR
(SINGLEPHASE ONLY)
TRANSFORMER T1
POTENTIAL RELAY K31
(SINGLEPHASE ONLY)
TERMINAL STRIP TB1
(GCS16 ONLY)
TRANSFORMER T4
TRANSFORMER T3
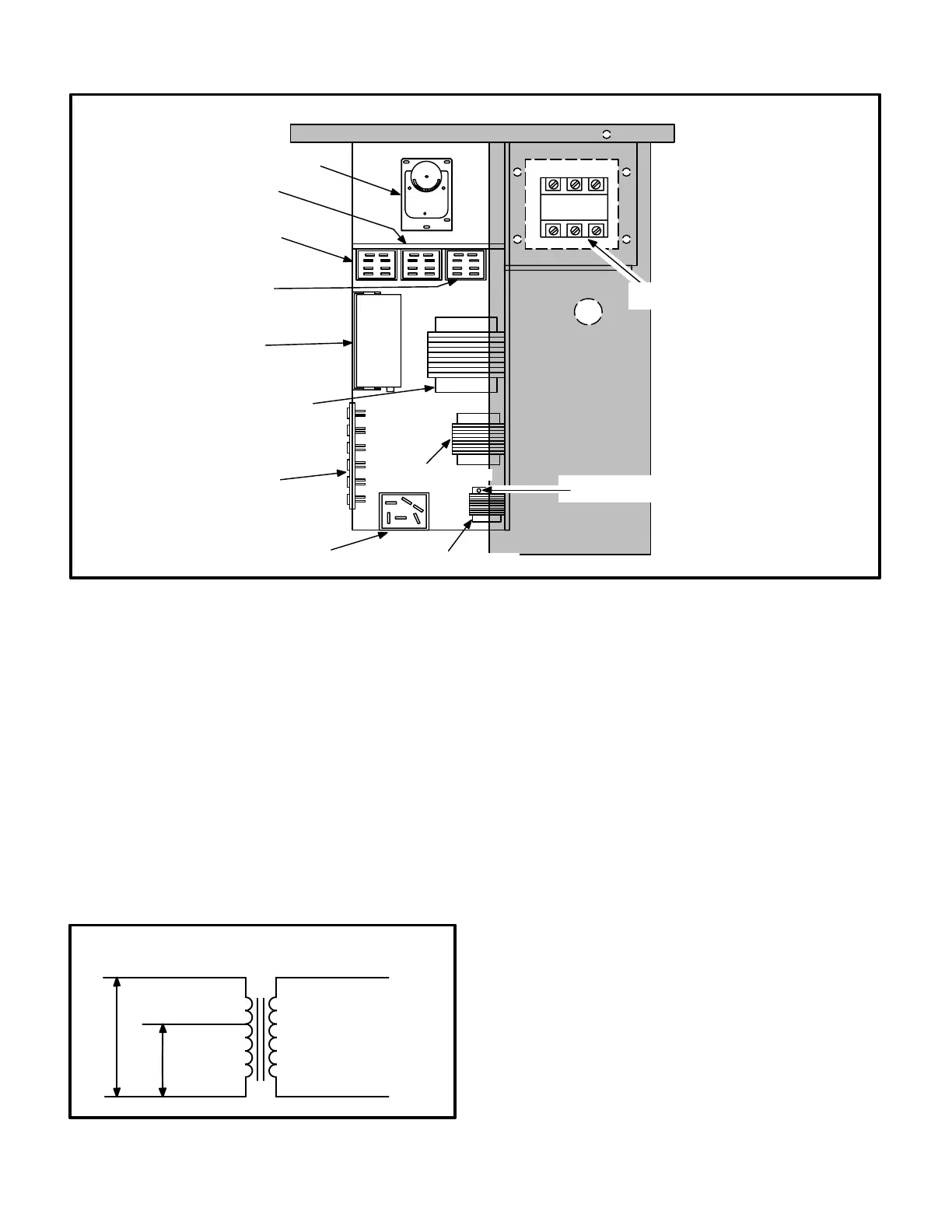
GCS16R-511/651 / GCS16-510/650 CONTROL BOX
FIGURE 6
INDOOR BLOWER RELAY K20
(HEATING SPEED)
460V & 575V UNITS ONLY
BLOWER/ LIMIT
CONTROL S47
COMBUSTION AIR BLOWER
RELAY K13
INDOOR BLOWER RELAY K3
(COOLING SPEED)
FUSE F1
460V & 575V UNITS ONLY
COMPRESSOR
CONTACTOR
1-Terminal Strip TB1
All GCS16 commercial units are equipped with a low volt
age terminal strip (TB1). The strip is used for making up all
indoor thermostat and outdoor unit low voltage control wir
ing connections (see figures 5 and 6). The terminal strip is
located in the burner compartment on the outside panel of
the control box.
2-Transformer T1
All GCS16 series units use a single line voltage to 24VAC
transformer mounted in the control box. The transformer
supplies power to control circuits in the unit. Transformers
are rated at 45VA. 208/230 (P) voltage transformers use
two primary voltage taps as shown in figure 7.
FIGURE 7
BLUE
YELLOW
ORANGE
RED
BLACK
240 VOLTS
208 VOLTS
PRIMARY SECONDARY
208 / 240 VOLT TRANSFORMER
3-Transformer Fuse F1
208/230 (P) voltage transformers are not equipped with in
ternal secondary voltage overcurrent protection. 460 (G)
voltage and 575 (J) voltage transformers are equipped
with an integral fuse connected in series with the blue sec
ondary voltage wire. The fuse may be accessed outside
the transformer and is rated 2.5A for 460 volt units and
3.5A for 575 volt units.
4-Transformer T3
460 (G) and 575 (J) voltage units use a line voltage to
230V autotransformer to power the combustion air blower.
The autotransformer is connected directly to line voltage
and is powered at all times. It has an output rating of 0.5A.
5-Transformer T4
575 (J) voltage units use a line voltage to 460V autotrans
former to power the indoor blower. This autotransformer is
also connected directly to line voltage and is powered at all
times. It has a maximum VA rating of 3.4A.

Related product manuals