EasyManua.ls Logo

Lennox GCS16-653-75

Lennox GCS16-653-75
134 pages
To Next Page IconTo Next Page
To Next Page IconTo Next Page
To Previous Page IconTo Previous Page
To Previous Page IconTo Previous Page
Loading...
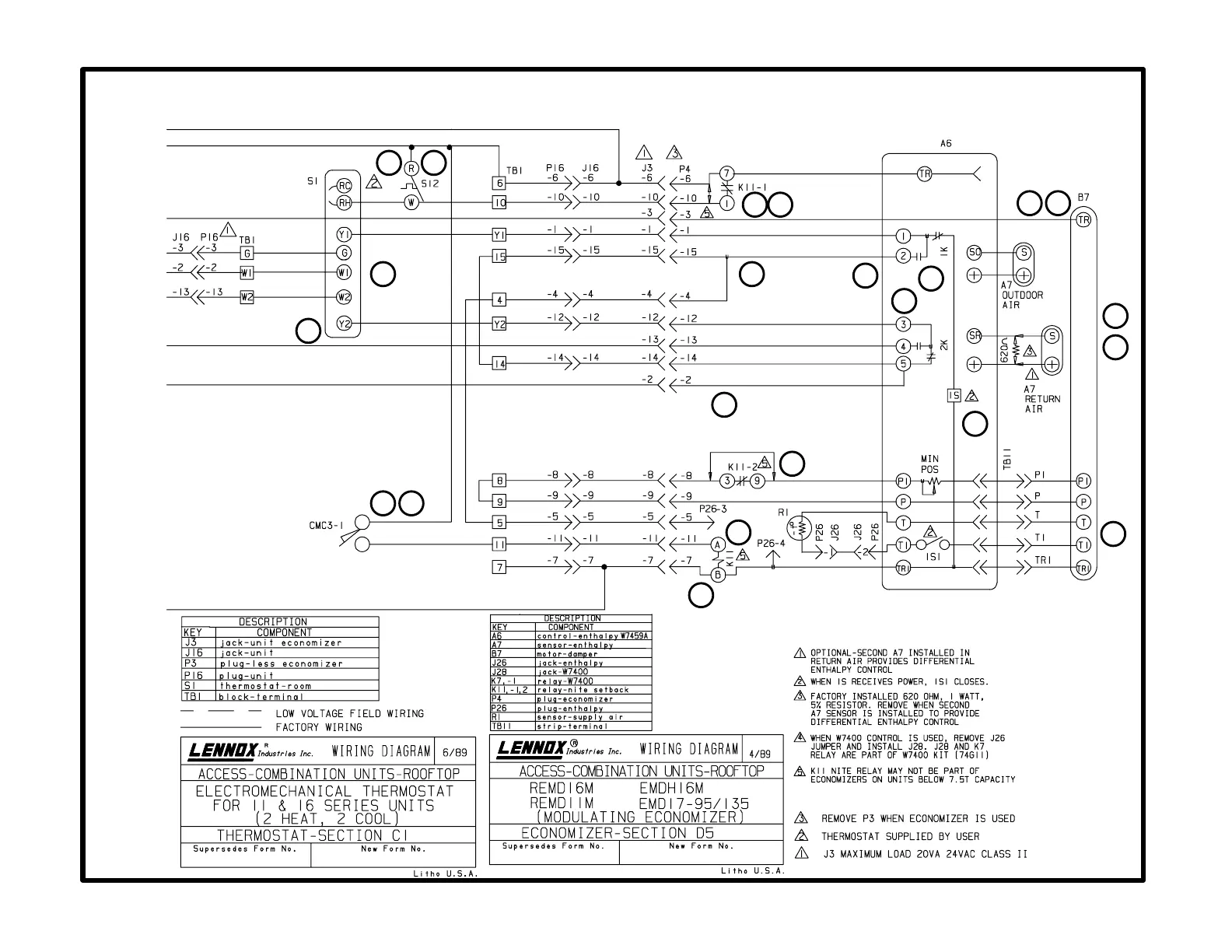
C1diagram
electromechanical thermostat with modulating economizer
with D5 diagram
Page 89
24V POWER
ECONOMIZER
BLOWER
HEAT 1
HEAT 2
COOL 2
COOL 1
24V COMMON
1
2
Economizer Footnotes
Thermostat Footnotes
3
4
5
6
7
8
9
10
11
12
13
14
14
1512
12 16
12
14
11

Related product manuals