EasyManua.ls Logo

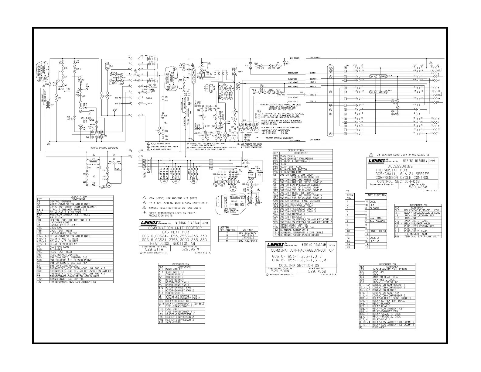
Lennox GCS16-953 - Wiring Diagrams (Continued); B9 and A8 Diagrams with C1 Diagram for GCS16-1853 Models

Lennox GCS16-953
80 pages
Print Icon
To Next Page IconTo Next Page
To Next Page IconTo Next Page
To Previous Page IconTo Previous Page
To Previous Page IconTo Previous Page
Loading...
Page 70
B9 and A8diagrams
with C1 diagram
GCS16-1853 with basic standard thermostat

Related product manuals