EasyManua.ls Logo

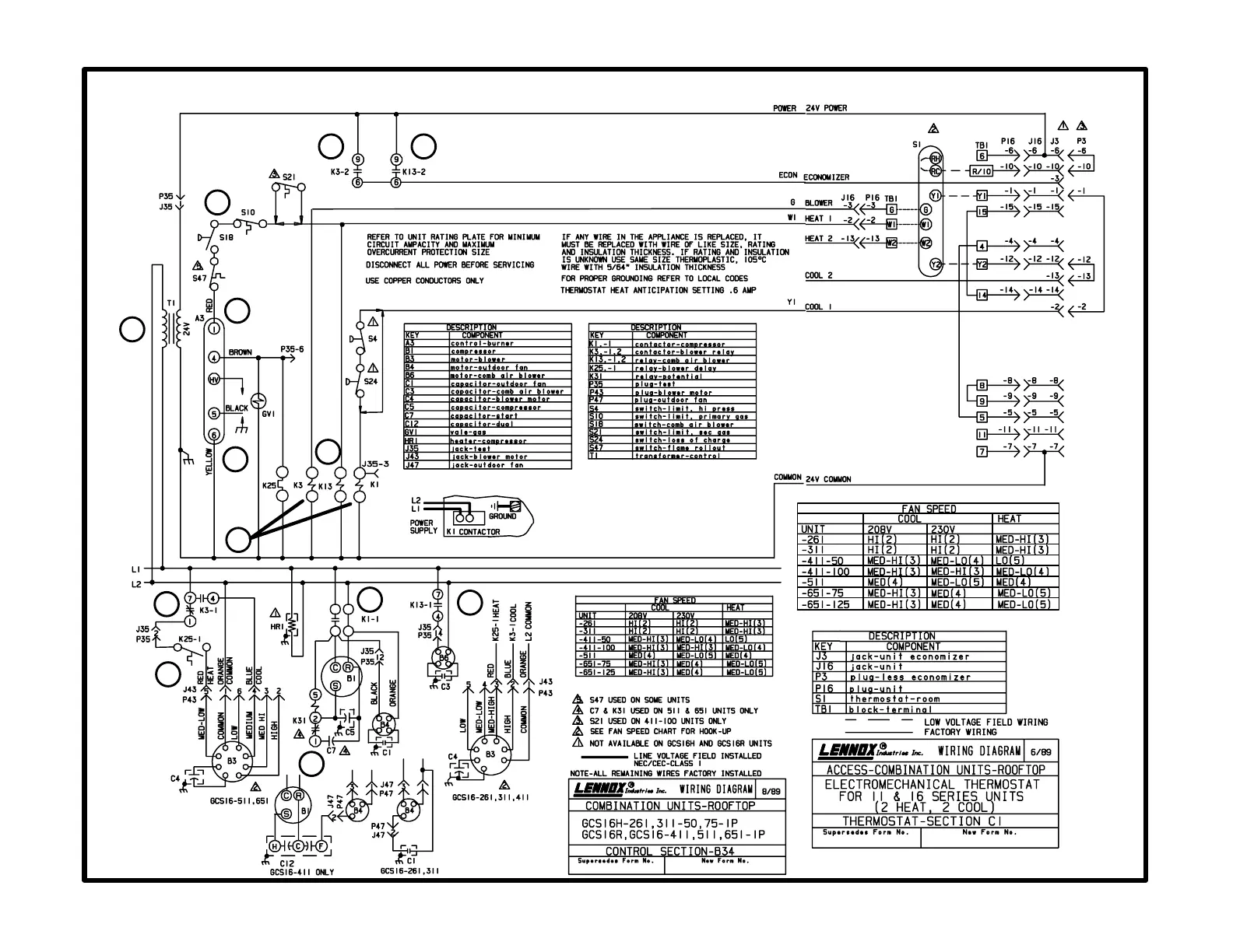
Lennox GCS16 Series - Wiring Diagrams - Commercial; C1;B34 Diagram: Commercial Single-Phase Thermostat Wiring

Lennox GCS16 Series
134 pages
To Next Page IconTo Next Page
To Next Page IconTo Next Page
To Previous Page IconTo Previous Page
To Previous Page IconTo Previous Page
Loading...
C1diagramwith B34 diagram
basic thermostat with commercial single-phase GCS16
Page 82
1
2
3
4
5
6
7
4
8
9
10
7
6

Related product manuals