EasyManua.ls Logo

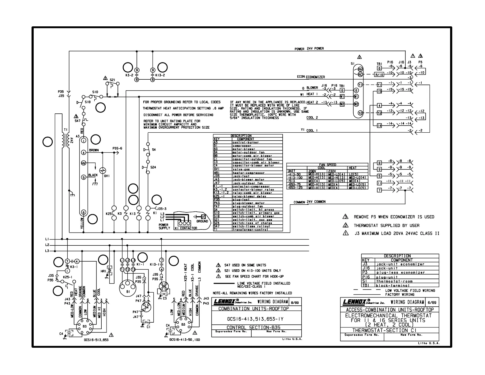
Lennox GCS16 Series - C1;B35 Diagram: Commercial 3-Phase Thermostat with Economizer Wiring

Lennox GCS16 Series
134 pages
To Next Page IconTo Next Page
To Next Page IconTo Next Page
To Previous Page IconTo Previous Page
To Previous Page IconTo Previous Page
Loading...
C1diagram
electromechanical thermostat without economizer
connected to 208/230V-3ph. commercial unit
with B35 diagram
Page 84
1
2
3
4
5
5
6
6
7
7
8
9
10
3
Unit Footnotes
Thermostat Footnotes

Related product manuals