EasyManua.ls Logo

Lennox GCS16R-651-125

Lennox GCS16R-651-125
134 pages
To Next Page IconTo Next Page
To Next Page IconTo Next Page
To Previous Page IconTo Previous Page
To Previous Page IconTo Previous Page
Loading...
Y1
W1
G
4
5
6
7
8
9
10
11
Y2
W2
14
15
TB1
TERMINAL
STRIP
1
2
3
4
5
6
7
8
9
10
1
2
3
4
5
6
7
8
9
10
W1 C1
W2 C2
OPTIONAL
FILTER
SWITCH KIT
GV1 GAS VALVE
RRB
READOUT
RELAY BOX
SP11
STATUS PANEL
C1
CNO
H1
1
2
W973 RRB
Y1
W1
1
2
W7400 RRB
13
798
465
132
C
C
1
2
3
4
5
6
7
8
9
10
DETAIL A
DETAIL A
LOSS OF CHARGE
SWITCH
HIGH PRESSURE
SWITCH
60 SEC.
TIME
DELAY
DL6
RELAY
K29
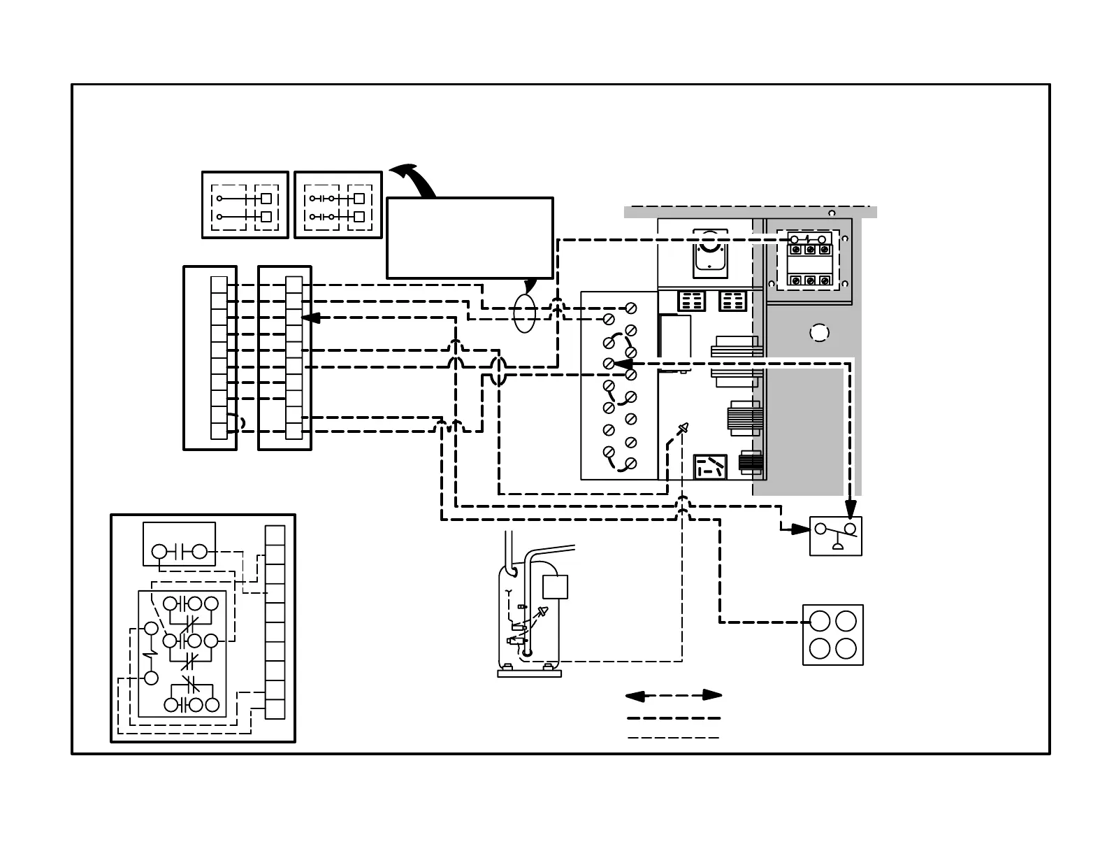
FIELD WIRING IS CON
NECTED TO TERMI
NAL STRIP UNLESS
W973 OR W7400 IS
INSTALLED.
GCS16 UNIT CONTROL BOX
FIELD WIRING SP11
GCS16-410 THROUGH -650
(applicable to units equipped with commercial controls only)
OPTIONAL EQUIPMENT
24VAC FIELD INSTALLED
24VAC FACTORY INSTALLED
Page 61Page 61
FIGURE 79
NOTE-This diagram shows field wiring connections made IN ADDITION TO thermostat field wiring. Thermostat field wiring is not shown.
IMPORTANT - Remove
TB1 Jumpers 4 to 5, 8 to
9 and 14 to 15 when us
ing W973 control, W7400
control or electrome
chanical thermostat with
warm-up.

Related product manuals