EasyManua.ls Logo

Lennox KCC092S4 - Page 45

Lennox KCC092S4
51 pages
To Next Page IconTo Next Page
To Next Page IconTo Next Page
To Previous Page IconTo Previous Page
To Previous Page IconTo Previous Page
Loading...

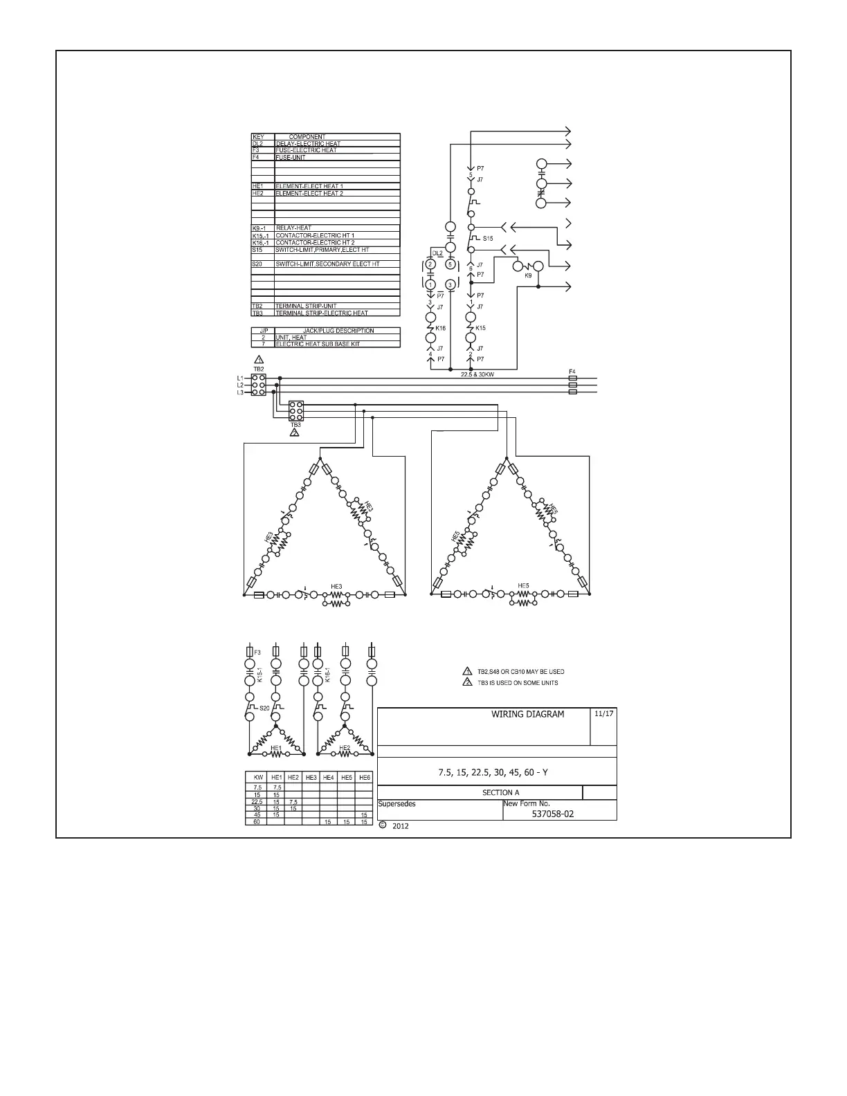
EHA-7.5, 15, 22.5, 30, 45 & 60kW Y VOLTAGE
KCC SERIES UNITS
Lennox Commercial
HEATING - ELECTRIC
REV 3
2
7
1
6
5
3
8
9
4
4
7
1
K9−1
F42
S157
F42
F43
F44
HE3
HE4
HE5
HE6
S157
S158
S159
FUSE−ELECTRIC HEAT 2
FUSE−ELECTRIC HEAT 3
FUSE−ELECTRIC HEAT 4
ELEMENT−ELECT HEAT 3
ELEMENT−ELECT HEAT 4
ELEMENT−ELECT HEAT 5
ELEMENT−ELECT HEAT 6
SWITCH−LIMIT,SECONDARY ELECT HT 2
SWITCH−LIMIT,SECONDARY ELECT HT 3
SWITCH−LIMIT,SECONDARY ELECT HT 4
P2
A
B
A
B
A
B
K9−2
9
6
L1
L2
T1
T2
L3
T3
L1
L2
T1
T2
L3
T3
15
15
S19
S19 THERMOSTAT−ELECTRIC HEAT LIMIT
7
8
P7J7
S158
S159
S160
S161
SWITCH−LIMIT,SECONDARY ELECT HT 5
SWITCH−LIMIT,SECONDARY ELECT HT 6
S20
S157
K15-1
L2
T2
K15-1
T1
L1
F3
F3
F42
F42
K15-1
T3
L3
F3
F42
S158
HE4
HE4
HE4
S159
S160
K16-1
L2
T2
K16-1
T1L1
F43
F43
F44
F44
K16-1
T3
L3
F43
F44
S161
HE6
HE6
HE6
K242
T1
L1
K243
T1
L1
K243
L2
T2
K242
L3T3
K243
L3T3
K242
L2
T2

Related product manuals