EasyManua.ls Logo

Lennox LCC360H2 - Page 30

Lennox LCC360H2
76 pages
Print Icon
To Next Page IconTo Next Page
To Next Page IconTo Next Page
To Previous Page IconTo Previous Page
To Previous Page IconTo Previous Page
Loading...
Page 30
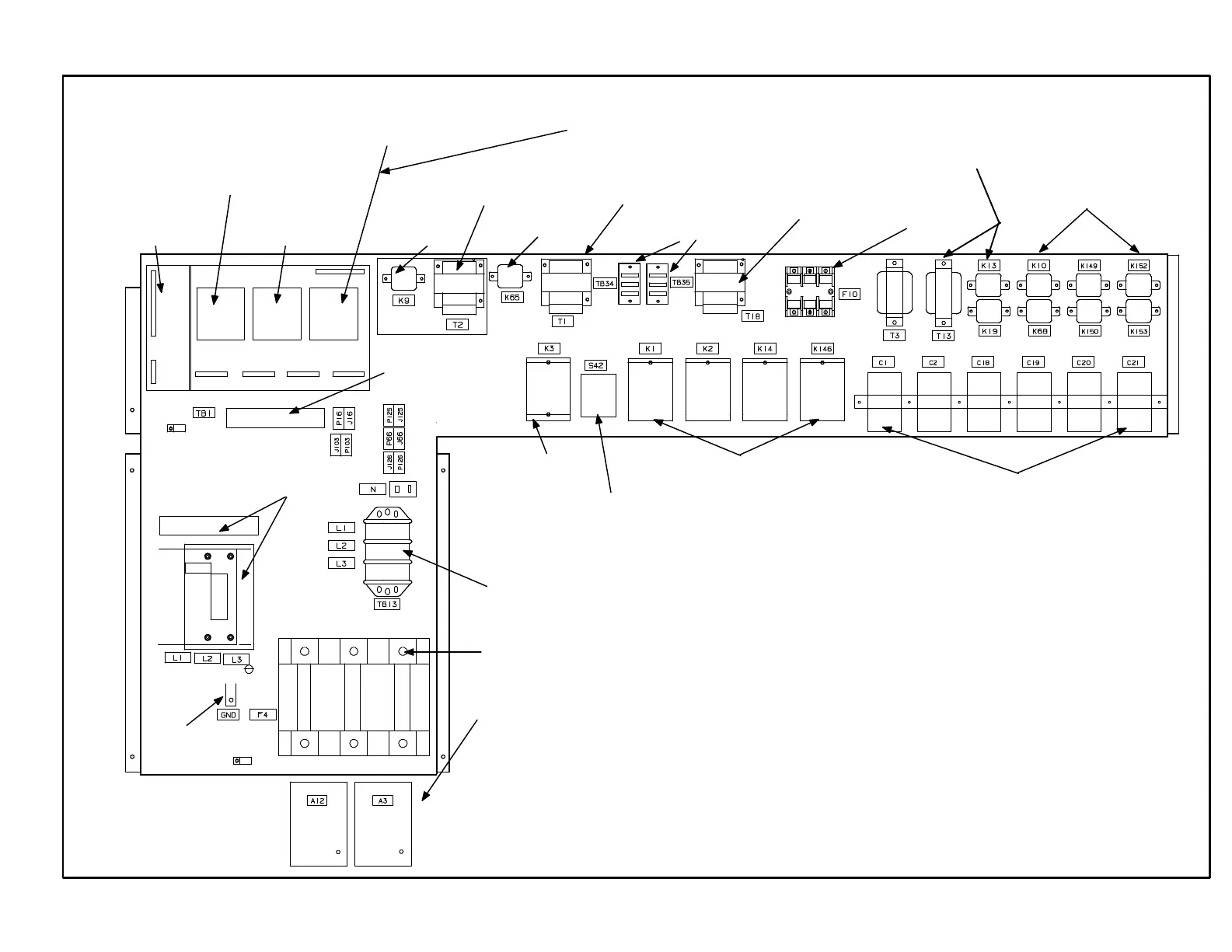
FIGURE 3
BLOWER CONTACTOR
RELAY (K3)
GROUND
LUG
TERMINAL
BLOCK (TB13)
(LINE VOLTAGE)
TERMINAL
BLOCK (TB1)
ELECTRIC
HEAT RELAY
(K9)
ELECTRIC HEAT
TRANSFORMER
(T2)
MAIN CONTROL
MODULE M1 (A55)
COMPRESSOR 2
CONTROL MODULE
C1 (A57)
CONTROL
TRANSFORMER
(T1)
OUTDOOR FAN
MOTOR FUSE
BLOCK (F10)
CONTACTOR
TRANSFORMER
(T18)
LOW VOLTAGE
TERMINAL STRIPS
[(TB34) TRANSFORMER 1]
[(TB35) TRANSFORMER 18]
COMPRESSORS 3 & 4
CONTROL MODULE
C2 (A59)
ELECTRIC HEAT 2
CONTROL MODULE E1 (A60)
(USED ONLY ON 45kW & HIGHER)
ECONOMIZER CONTROL
MODULE EM1 (A56)
(ECONOMIZER ONLY)
BLOWER MOTOR
OVERLOAD RELAY (S42)
(DIFFERENT BLOWER MOTORS)
COMPRESSOR 1
through 4 CONTACTOR
K1, K2, K14, ALL UNITS
K146 300H UNITS
UNIT FUSE BLOCK (F4)
(INSTALLED ONLY IF
ELECTRIC HEAT IS USED)
OUTDOOR FAN
CAPACITOR 1
through 6
(C1, C2, C18,
C19, C20, C21)
POWER EXHAUST
RELAY (K65)
OUTDOOR FAN RELAY
(K10 K149 K152 K68
K150 153)
C.A.B TRANSFORMER and RELAYS
LGA UNITS (T3 and T13) (K13 and K19)
BURNER CONTROL
(A12 and A3) LGA ONLY
LGA/LGC/LCA/LCC CONTROL BOX
GAS HEAT CONTROL MODULE (A58)
(LGA ONLY)
TERMINAL STRIP (TB2)
OR OPTIONAL DISCONNECT
SWITCH (S48) OR OPTIONAL
CIRCUIT BREAKER
(TB2)
(S48)

Related product manuals