EasyManua.ls Logo

Lennox LDT240

Lennox LDT240
54 pages
To Next Page IconTo Next Page
To Next Page IconTo Next Page
To Previous Page IconTo Previous Page
To Previous Page IconTo Previous Page
Loading...
Page 52
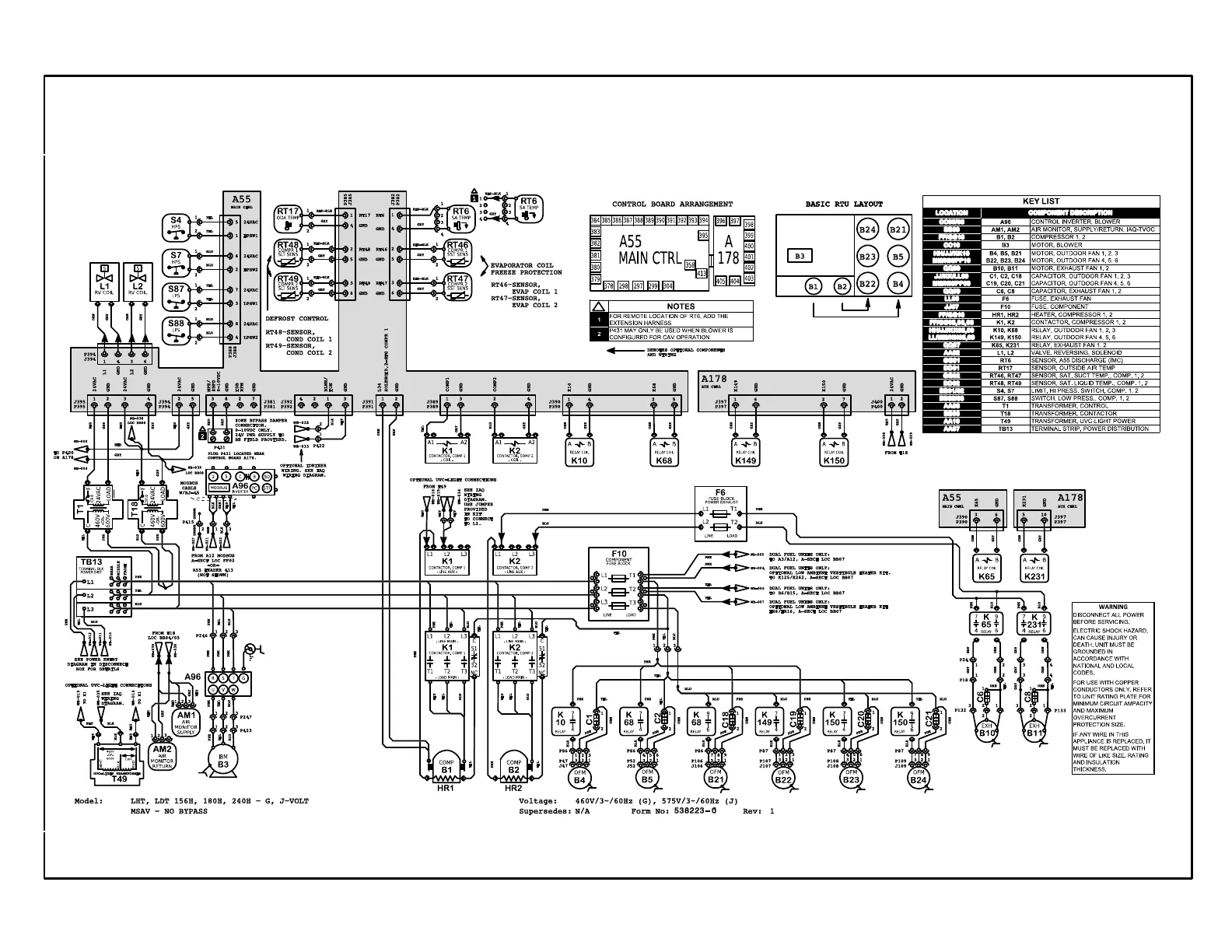
LHT, LDT156/180/240 G, J Voltage No By-Pass
538223-01

Other manuals for Lennox LDT240

Related product manuals