EasyManua.ls Logo

Lennox LRP14HP36 - Page 38

Lennox LRP14HP36
49 pages
Print Icon
To Next Page IconTo Next Page
To Next Page IconTo Next Page
To Previous Page IconTo Previous Page
To Previous Page IconTo Previous Page
Loading...
Page 38
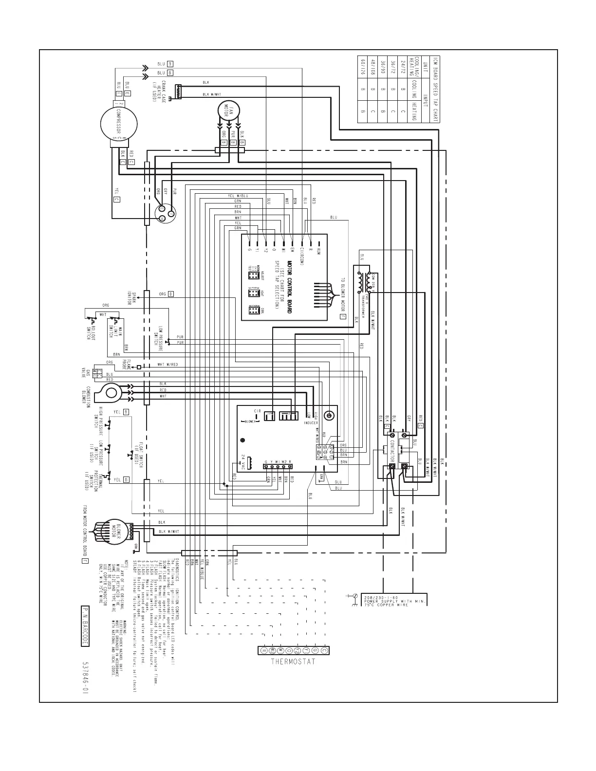
LRP16GE Wiring Diagram
FIGURE 18

Related product manuals