EasyManua.ls Logo

Lennox LRP14HP36 - Page 39

Lennox LRP14HP36
49 pages
Print Icon
To Next Page IconTo Next Page
To Next Page IconTo Next Page
To Previous Page IconTo Previous Page
To Previous Page IconTo Previous Page
Loading...
Page 39
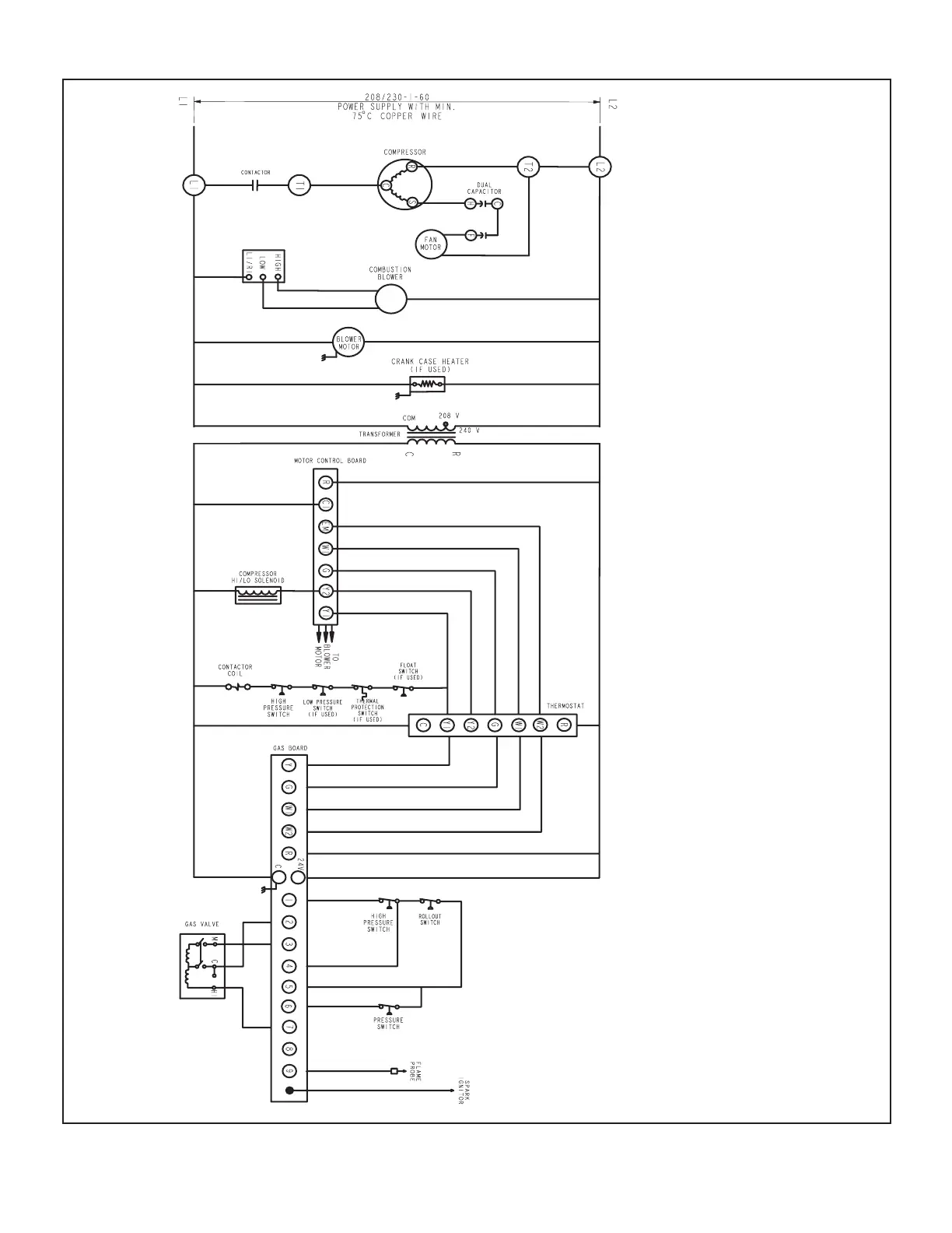
LRP16GE Unit Wiring – Single Phase
FIGURE 19

Related product manuals