EasyManua.ls Logo

Lennox MCC Series - Page 66

Lennox MCC Series
86 pages
Print Icon
To Next Page IconTo Next Page
To Next Page IconTo Next Page
To Previous Page IconTo Previous Page
To Previous Page IconTo Previous Page
Loading...
Installation - Operation - Maintenance manual (IOM) AIR COOLED CHILLERS & SPLIT UNITS - 0105-E • 64 •
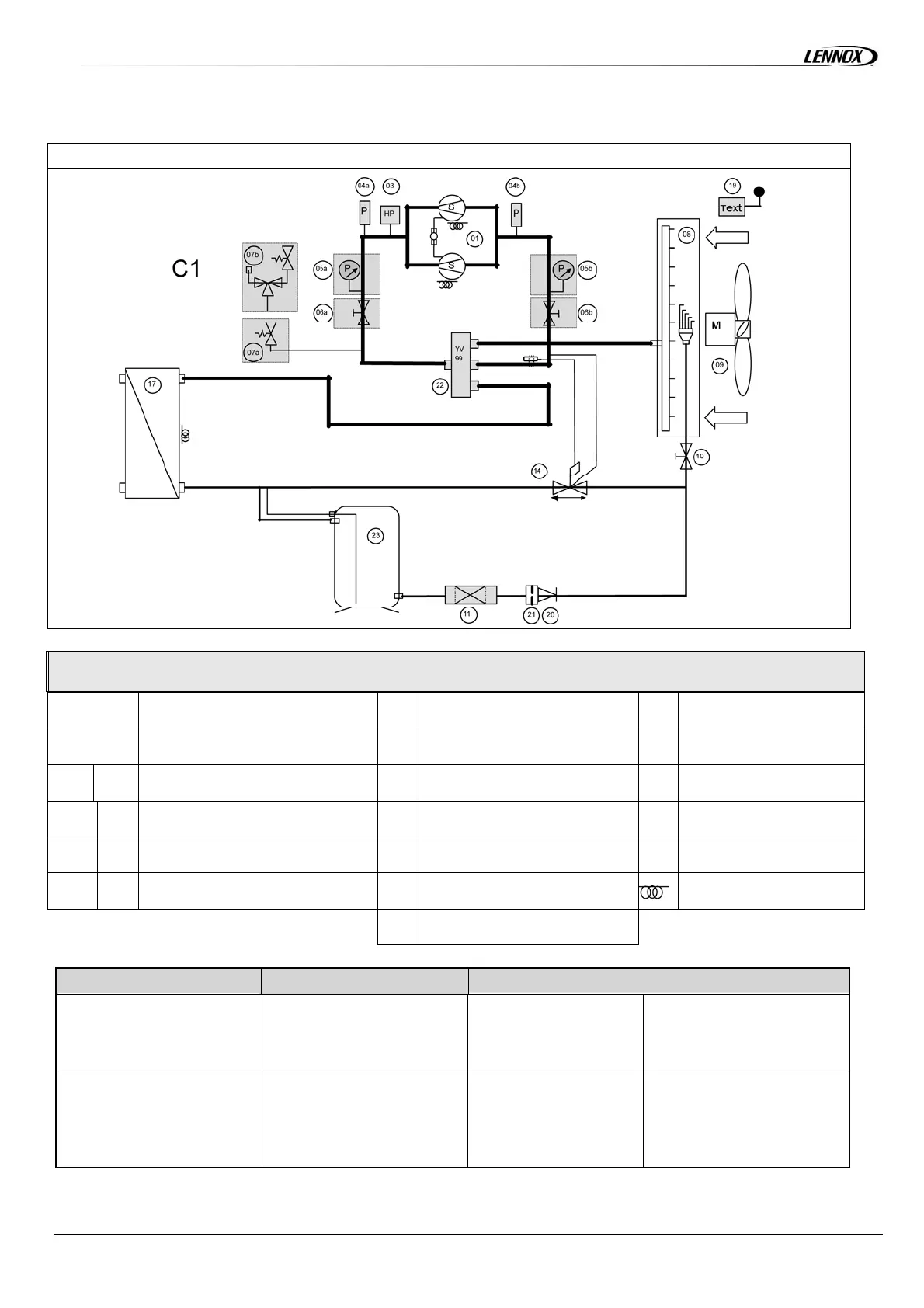
ECOLOGIC - REFRIGERATION CIRCUIT
REFRIGERANT DRAWING
WAH 150 / 200D / 230D
REFRIGERATION CIRCUIT COMPONENTS
01
1st & 2nd scroll compressors
08
Air cooled
condenser/Evaporator
19
External temperature
sensor
02
High pressure switch
09
Fan motor
20
Check valve
04a 04b
Pressure transducers HP & BP
10
Manual isolating valve
21
Restrictor
05a 05b
Low and High pressure manometer
11
Filter drier
22
4-way inverting valve
06a 06b
Suction and discharge isolation
valves
14
Thermostatic expansion valve
23
Liquid receiver
07a 07b
Safety valve CE or UDT
13
Sight glass
Heating resistance (option)
17
Evaporator heat exchanger
BA
S
I
C
U
NIT
VARIANT
OPTIONS
BASIC UNIT
CE or UDT
HP/LP pressure gauges
Suction and discharge
isolating valves
01/03/04a/04b/19/22/08/09/
10/11/23/20/17/14/21
07a or 07b
Add 06a/06b
Add 05a/05b

Other manuals for Lennox MCC Series

Related product manuals