EasyManua.ls Logo

Lennox MCC Series - Page 27

Lennox MCC Series
98 pages
Print Icon
To Next Page IconTo Next Page
To Next Page IconTo Next Page
To Previous Page IconTo Previous Page
To Previous Page IconTo Previous Page
Loading...
Installation - Operation - Maintenance manual (IOM) AIR COOLED CHILLERS & SPLIT UNITS - 0105-E • 25 •
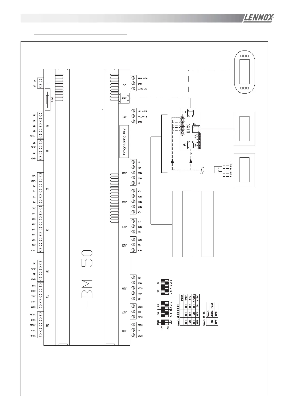
6.1.4 - Connection diagrams - CLIMATIC™ 50
DC 50DC 50
AWG24
DS 50
OPERATION

Other manuals for Lennox MCC Series

Related product manuals