EasyManua.ls Logo

Lennox XC14-036

Lennox XC14-036
22 pages
To Previous Page IconTo Previous Page
To Previous Page IconTo Previous Page
Loading...
Page 22
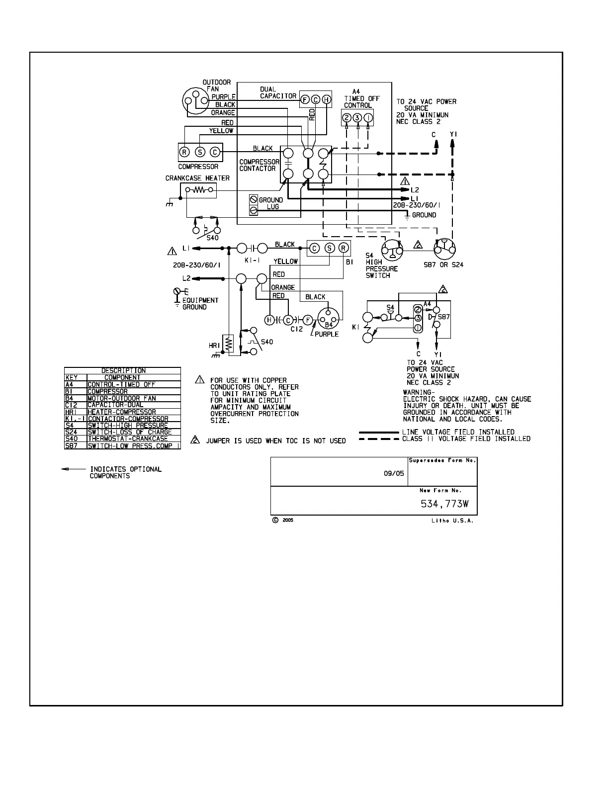
VII − WIRING DIAGRAMS AND SEQUENCE OF OPERATION
XC14
NOTE− The thermostat used may be electromechanical or electronic.
NOTE− Transformer in indoor unit supplies power (24 VAC) to the thermostat and outdoor unit controls.
COOLING:
1− Cooling demand initiates at Y1 in the thermostat.
1 − − 24VAC from indoor unit (Y1) energizes the TOC timed off control (if used) , which energizes contactor K1.
2 − − K1-1 N.O. closes, energizing compressor (B1) and outdoor fan motor (B4).
4 Compressor (B1) and outdoor fan motor (B4) begin immediate operation..
END OF COOLING DEMAND:
5− Cooling demand is satisfied. Terminal Y1 is de-energized.
6− Compressor contactor K1 is de-energized.
7− K1-1 opens and compressor (B1) and outdoor fan motor (B4) are de-energized and stop immediately.

Related product manuals