EasyManua.ls Logo

Lenoxx G1D91BU - G1 D91 BU, G1 D91 BT, G1 D93 BU and G1 D93 BT Upflow Models - Direct Vent Installation

Lenoxx G1D91BU
36 pages
Print Icon
To Next Page IconTo Next Page
To Next Page IconTo Next Page
To Previous Page IconTo Previous Page
To Previous Page IconTo Previous Page
Loading...
506305-01 Page 11 of 36Issue 0938
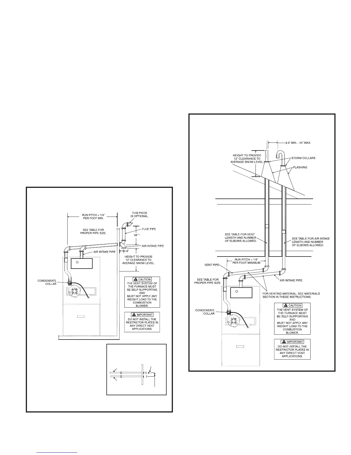
Do not cement air intake into the connector on burner
box. Use high temperature RTV silicone sealant so
intake pipe can be removed if service is required.
In horizontal venting applications, the vent and air intake
pipe must be installed on the same side of the house
within the parameters shown in Figure 7.
Prime the trap system by slowly pouring 1 cup of water down
the vent pipe. On initial start-up of the unit, some of the
water used to prime the trap system may run down into the
combustion blower and cause noise.
G1D91BU, G1D91BT, G1D93BU and G1D93BT Upflow
Models – Direct Vent Installation
An inlet air restrictor plate (see Figure 2 on page 5) is supplied with
this furnace and can be found in the plastic bag containing these
Installation Instructions and the User’s Information Manual. This
restrictor plate is to be used only in non-direct vent
applications. See pages 5 and 6 for more information on installing
the restrictor plate in non-direct vent applications.
The flue pipe screen (see Figure 2 on page 5) should be
installed at the termination of the flue pipe and is designed to
keep objects out of the flue pipe. An additional screen should
not be placed in the intake termination. If a screen is installed,
the air intake may freeze shut.
For horizontal venting, refer to Figure 7. For vertical venting,
refer to Figure 8. It is permissible to run the vent vertically
through the roof and terminate it as shown in Figure 8, and
to run the combustion air intake pipe horizontally through a
side wall and terminate as shown in Figure 7. The vent pipe
on horizontal runs must slope upward, away from the furnace,
at a minimum pitch of 1/4" per foot of run, to prevent
accumulation of condensate.
Figure 7
Upflow Direct Vent – Horizontal Venting
(G1D91BU, G1D91BT, G1D93BU & G1D93BT Only)
* Maintaining a vertical separation
between the flue outlet and the
air intake of at least 18” is highly
recommended to minimize the
chance of flue gases
recirculating and freezing in the
air intake pipe. This distance
may be reduced in milder
climates or where wind is
unlikely to blow flue products to
the intake pipe, but should not
be less than 6”.
THIS PIECE
IS OPTIONAL.
INTAKE PIPE
FLUE PIPE
3” MIN. - 48” MAX.
Overhead View
Upflow Direct Vent – Vertical Venting
(G1D91BU, G1D91BT, G1D93BU & G1D93BT Only)
Figure 8