EasyManua.ls Logo

Lenoxx G1D91BU - G1 D91 BU, G1 D91 BT, G1 D93 BU & G1 D93 BT Upflow Models - Non-Direct Vent Installation

Lenoxx G1D91BU
36 pages
Print Icon
To Next Page IconTo Next Page
To Next Page IconTo Next Page
To Previous Page IconTo Previous Page
To Previous Page IconTo Previous Page
Loading...
506305-01Page 12 of 36 Issue 0938
G1D91BU, G1D91BT, G1D93BU & G1D93BT Upflow
Models – Non-Direct Vent Installation
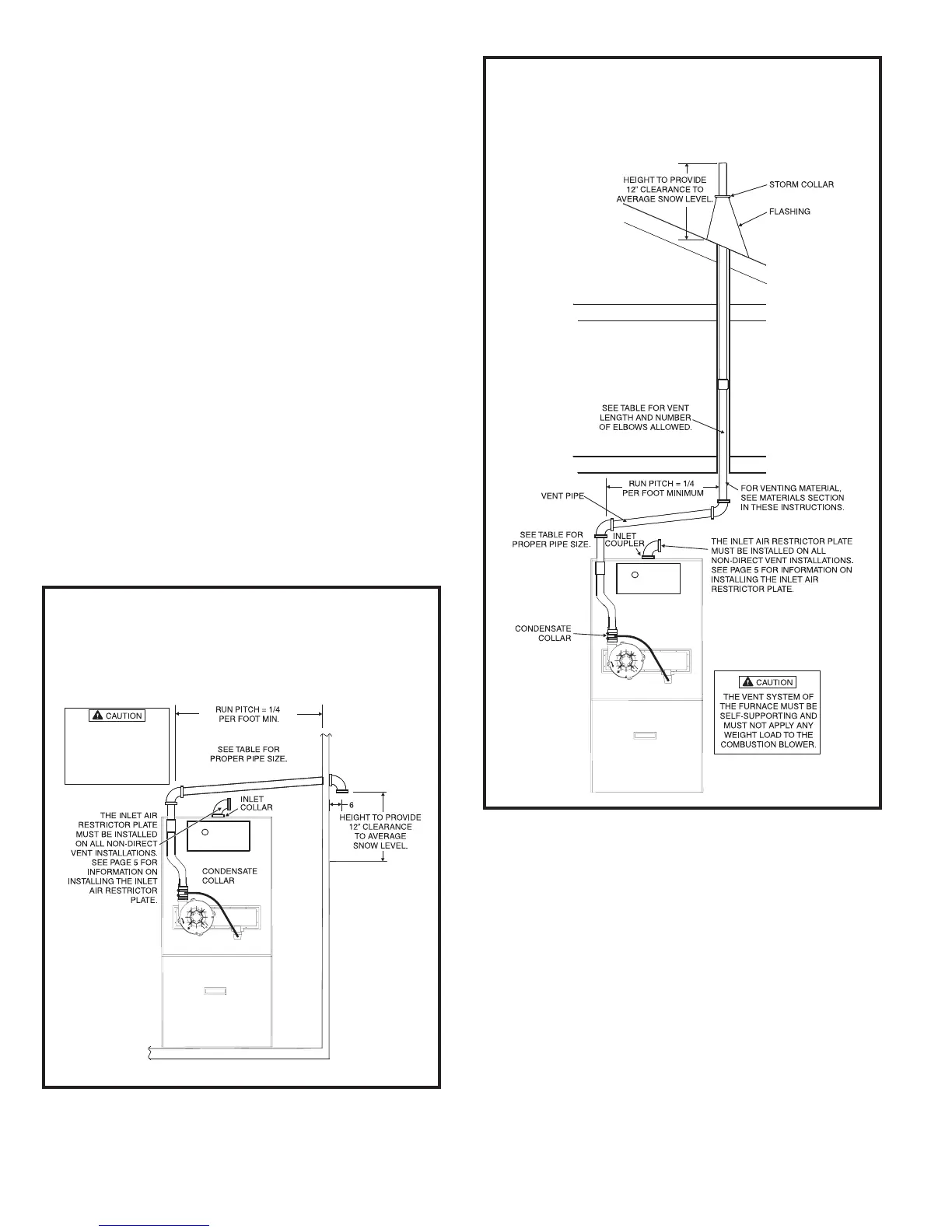
An inlet air restrictor plate (see Figure 2 on page 5) is supplied
with this furnace and can be found in the plastic bag
containing these Installation Instructions and the User’s
Information Manual. This restrictor plate is to be used
only in non-direct vent applications. See pages 5 and 6
for more information on installing the restrictor plate in non-direct
vent applications.
Two inlet air restrictor plates are supplied with each furnace
– a 2" plate and a 3" plate. Use the proper restrictor plate
for the furnace model.
The flue pipe screen (see Figure 2 on page 5) should be
installed at the termination of the flue pipe and is designed
to keep objects out of the flue pipe.
For horizontal venting, refer to Figure 9. For vertical venting,
refer to Figure 10. The vent pipe on horizontal runs must
slope upward, away from the furnace, at a minimum pitch of
1/4" per foot of run, to prevent accumulation of condensate.
Prime the trap system by slowly pouring 1 cup of water down
the vent pipe. On initial start-up of the unit, some of the
water used to prime the trap system may run down into the
combustion blower and cause noise.
Figure 9
Upflow Non-Direct Vent Horizontal Venting
(G1D91BU, G1D91BT, G1D93BU & G1D93BT Only)
(CLOSED)
DRAINHOLE
THRU.
59.69/56.64
"
"
THE VENT SYSTEM OF
THE FURNACE MUST BE
SELF-SUPPORTING AND
MUST NOT APPLY ANY
WEIGHT LOAD TO THE
COMBUSTION BLOWER.
Upflow Non-Direct Vent Vertical Venting
(G1D91BU, G1D91BT, G1D93BU & G1D93BT Only)
Figure 10
(CLOSED)
DRAINHOLE
THRU.
59.69/56.64
"