EasyManua.ls Logo

Lenze ECSEE020 - Mounting with Fixing Rails (Standard Installation); Dimensions; Mounting Steps

Lenze ECSEE020
169 pages
Print Icon
To Next Page IconTo Next Page
To Next Page IconTo Next Page
To Previous Page IconTo Previous Page
To Previous Page IconTo Previous Page
Loading...
Mechanical installation
Mounting with fixing rails (standard installation)
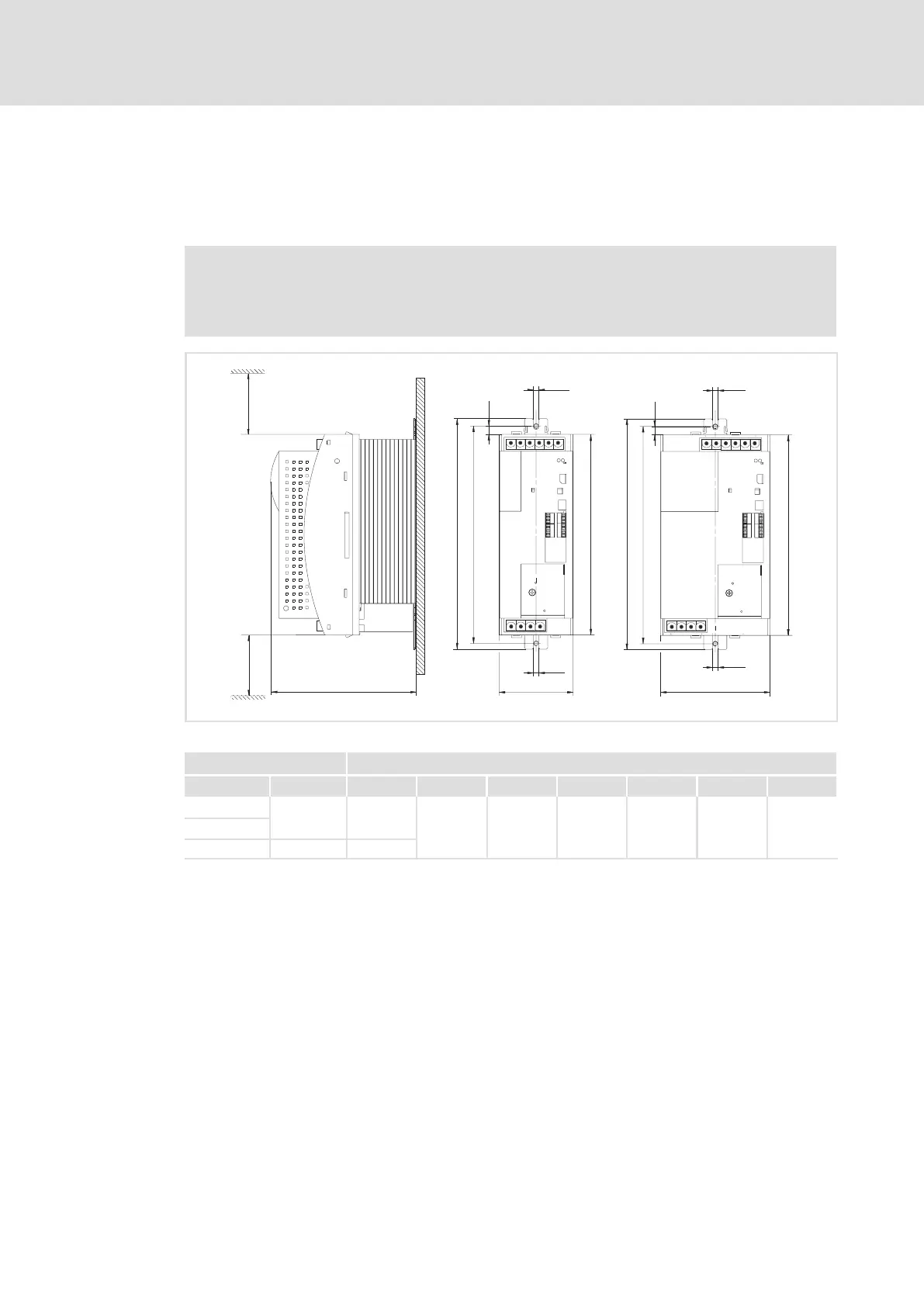
Dimensions
4
25
EDBCSXE040 EN 6.0
4.2 Mounting with fixing rails (standard installation)
4.2.1 Dimensions
Note!
Mounting with ECSZS000X0B shield mounting kit:
ƒ Mounting clearance below the module > 195 mm
h
h
a
g
g
a
d1
d
g
g
0
1
d1
d
b
b
³ 65 mm
e
³ 65 mm
ECSXA005
Fig. 4−1 Dimensions for "panel−mounted" design
Power supply module Dimensions [mm]
Type Size a b d d1 e h g
ECSEE012
88.5
240 276 260
176
212 1
)
10
6.5
(M6)
ECSEE020
ECSEE040 131
1)
max. 212 mm, depending on the communication module attached
4.2.2 Mounting steps
Proceed as follows to mount the power supply module:
1. Prepare the fixing holes on the mounting surface.
Use the drilling jig for this purpose.
2. Take the fixing rails from the accessory kit in the cardboard box.
3. Push the rails into the slots of the heatsink:
From above: push in the long side.
From below: push in the short side.
4. Attach the power supply module to the mounting surface.

Table of Contents

Related product manuals