EasyManua.ls Logo

Lenze ESV402N02TXB571 - Page 23

Lenze ESV402N02TXB571
48 pages
To Next Page IconTo Next Page
To Next Page IconTo Next Page
To Previous Page IconTo Previous Page
To Previous Page IconTo Previous Page
Loading...
21
EDBSV571 EN 1.0
EN
Commissioning
Code Possible Settings
IMPORTANT
No. Name Default Selection
p107
(1)
Line Voltage
Selection
1* 0 Low (120, 200, 400, 480VAC) * The default setting is 1 for all drives except
when using “Reset to 50Hz default settings”
(Parameter P199, selection 4) with 480V
models. In this case, the default setting is 0.
1 High (120, 240, 480, 600VAC)
p108
Motor Overload 100 30 {%} 100 P108 = motor current rating x 100
SMV output rating
Example: if motor = 3amps and SMV =
4amps, then P108 = 75%
NOTE
Do not set above rated motor current as listed on the motor dataplate. The motor
thermal overload function of the SMV is UL approved as a motor protection device.
Cycling power after an overload fault could result in significantly reducing the motor
life.
P109
Motor Overload
Type
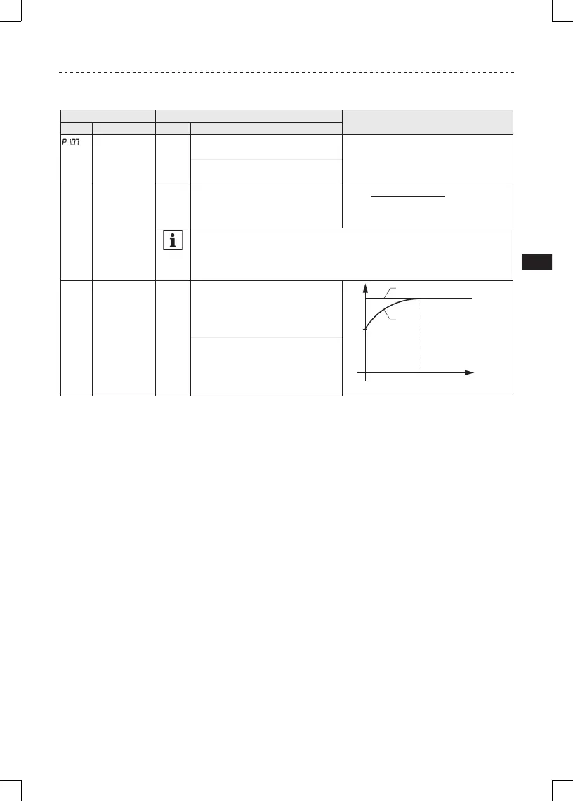
0 0 Speed Compensation
Reduces the allowable continuous
current when operating below 30Hz.
Ir
100%
60%
30 f
1
0
V0108
Ir: rated current (%), f: motor frequency (Hz)
1 No Speed Compensation
Example: Motor is cooled by forced
ventilation as apposed to shaft
mounted, self cooling fans.

Related product manuals