EasyManua.ls Logo

Lenze EVS9324EP - Page 284

Lenze EVS9324EP
334 pages
Print Icon
To Next Page IconTo Next Page
To Next Page IconTo Next Page
To Previous Page IconTo Previous Page
To Previous Page IconTo Previous Page
Loading...
Function library
Function blocks
3.5.59 Switching points (SP)
3−256
l
EDSVS9332P−EXT DE 2.0
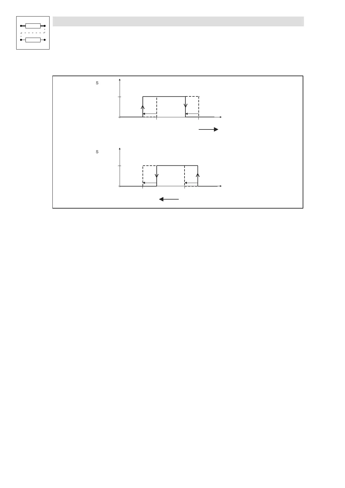
Positive dead time
I N x - 1 I N x - 2
S P 2 - L - I N
S
P 2 - S T A T x
H I G H
L O W
T d e a d
T
d e a d
T r a v e l d i r e c t i o n
I N x - 1 I N x - 2
S P 2 - L - I N
S
P 2 - S T A T x
H I G H
L O W
T
T o t
T
T o t
T r a v e l d i r e c t i o n
( p o s i t i v e d e a d t i m e )
( p o s i t i v e d e a d t i m e )
Fig. 3−205 Function of the positive dead time with different travel directions
l
With a positive dead time, the drive reacts earlier by the time period set.

Table of Contents

Related product manuals