EasyManua.ls Logo

Lenze EVS9326EP - Page 285

Lenze EVS9326EP
334 pages
Print Icon
To Next Page IconTo Next Page
To Next Page IconTo Next Page
To Previous Page IconTo Previous Page
To Previous Page IconTo Previous Page
Loading...
Function library
Function blocks
3.5.59 Switching points (SP)
3−257
l
EDSVS9332P−EXT DE 2.0
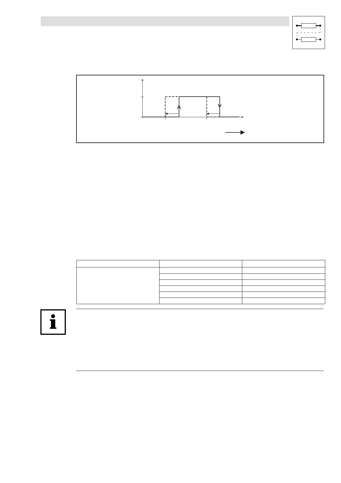
Negative dead time
I N x - 1 I N x - 2
S P 2 - L - I N
S P 2 - S T A T x
H I G H
L O W
T
d e a d
T
d e a d
T r a v e l d i r e c t i o n
( n e g a t i v e d e a d t i m e )
Fig. 3−206 Function of the negative dead time
l
With a negative dead time, the drive reacts later by the time period set.
3.5.59.4 Filter time constant
This function is available only for the FB SP2.
Purpose
Avoids undefined switching of the output signals at SP2−STAT1 ... SP2−STAT4 when the motor is
running at low speed.
Function
l The filter time constant is entered via C1659.
The setting is valid for SP2−STAT1 ... SP2−STAT4.
Assignment of the codes to the filter time constant:
Code Value Filter time constant
C1659
0 Off
1 1 ms
2 2 ms
4 4 ms
8 8 ms
16 16 ms
Tip!
The correct setting can only be found by testing.
In general:
l The lower the resolution of the actual position encoder and the lower the travel speed, the
higher the filter time constant.

Table of Contents

Related product manuals