EasyManua.ls Logo

Leviton HXC4D-1TW - Typical Specification; Standards Compliance; Specifications; Installation Consideration

Leviton HXC4D-1TW
2 pages
Print Icon
To Previous Page IconTo Previous Page
To Previous Page IconTo Previous Page
Loading...
2
JOB NAME:
JOB NUMBER:
CATALOG NUMBERS:
SPECIFICATION SUBMITTAL
Leviton Mfg. Co., Inc.
59-25 Little Neck Pkwy • Little Neck, NY 11362-2591 • Tech Line: 1-800-824-3005 • Fax: 1-800-832-9538
V
isit our W
ebsite at: www
.leviton-lin.com
Product
Specifications
HXC4D-1TW
.............................
R
eceives:
STATUS ON and STATUS OFF reports from any 2-Way
capable receivers whose addresses correspond to the
buttons on the controller when status of the receiver is
c
hanged manually.
COLOR CHANGE KIT ORDERING INFORMATION
I
vory DRK4D-00I
White DRK4D-00W
Almond DRK4D-00A
LABEL KIT
Ivory DCK4D-0CI
White DCK4D-0CW
Almond DCK4D-0CA
PROGRAMMING
Unit requires that a Base address be set using a matrix of 8
buttons located behind the easily removed color change kit.
This base address, both House Code and Unit Code,
determines the range of address that the transmitter can
control. In this case (HXC4D) the base address will correspond
to the first, top-most set of ON/OFF buttons and the next
three (sequential) addresses, i.e. A1 (base), A2, and A3.
WARRANTY INFORMATION
Two year limited product warranty.
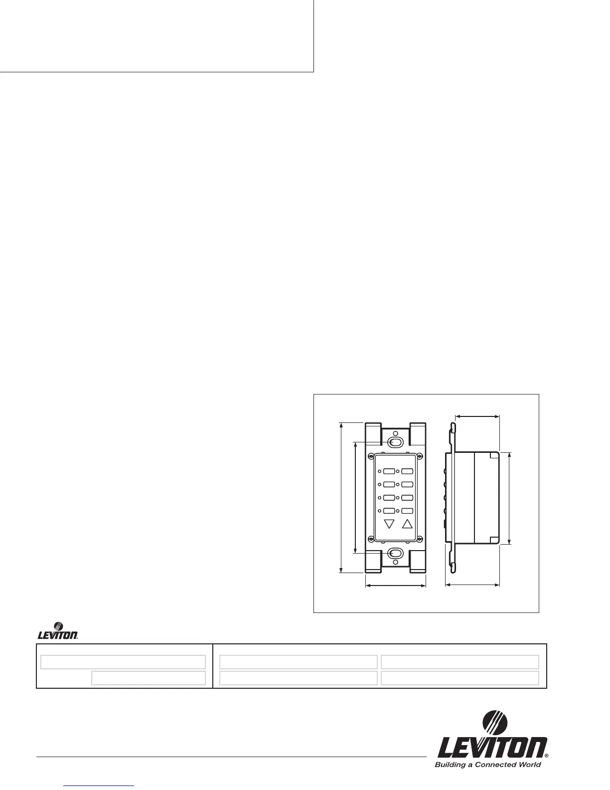
DIMENSIONAL DRAWING
TYPICAL SPECIFICATION
The Four-Address Wall Mounted dimming controller controls
all properly addressed PLC devices that are X-10 compliant
and of the appropriate type via 120 KHz signals transmitted
over 120VAC, 60Hz power lines. It features Leviton’s
Intellisense™ Technology (gated automatic gain control). It
utilizes green LED’s that illuminate to indicate ON command
sent or STATUS ON report received. It is compatible with
Decora screwless and standard designer wallplates. It has
available color change kits in White, Ivory and Almond.
STANDARDS COMPLIANCE
Meets all applicable standards:
Standard and Extended X-10 Code Format (XTC798)
UL Listed (File #E-66800)
CSA Certified (File #LR-54628)
UL 244A tested.
SPECIFICATIONS
Dimensions: 4.40” H x 1.76” W x 1.40” D
Rating: 120VAC, 60Hz
Power Consumption: 3W
Output Frequency: 120KHz
INSTALLATION CONSIDERATION
Cat. No. HCA02-10E coupler/repeater must be installed in
every DHC installation to insure maximum signal strength.
Maximum of 4 “transmit-capable” devices (controllers,
programmers and 2-way receivers) should be installed
on a single branch circuit.
COMMUNICATION
Transmit:
Address ON – when any ON button is pressed, sends
command to all units with address (House code & Unit
code) corresponding to the button pressed on the
controller/transmitter.
Address OFF – when any OFF button is pressed, sends
command to all units with address (House code & Unit
code) corresponding to the button pressed on the
controller/transmitter
.
Bright – when
s
button is pressed, brightens the last device
addressed on base House Code
Dim – when
t
button is pressed, dims the last device
addressed on base House Code
1.76
(45.0 mm)
2.69
(68.2 mm)
3.28 (83.3 mm)
4.40 (112.0 mm)
1.40
(35.5 mm)
1.60
(40.6 mm)
HXC4D-10W
O
N
ON
O
FF
OFF
ON OFF
ON
OFF
B-1100/D5

Related product manuals