EasyManua.ls Logo

LG 55EF5K - Page 23

LG 55EF5K
135 pages
Print Icon
To Next Page IconTo Next Page
To Next Page IconTo Next Page
To Previous Page IconTo Previous Page
To Previous Page IconTo Previous Page
Loading...
23
ENGLISH_index
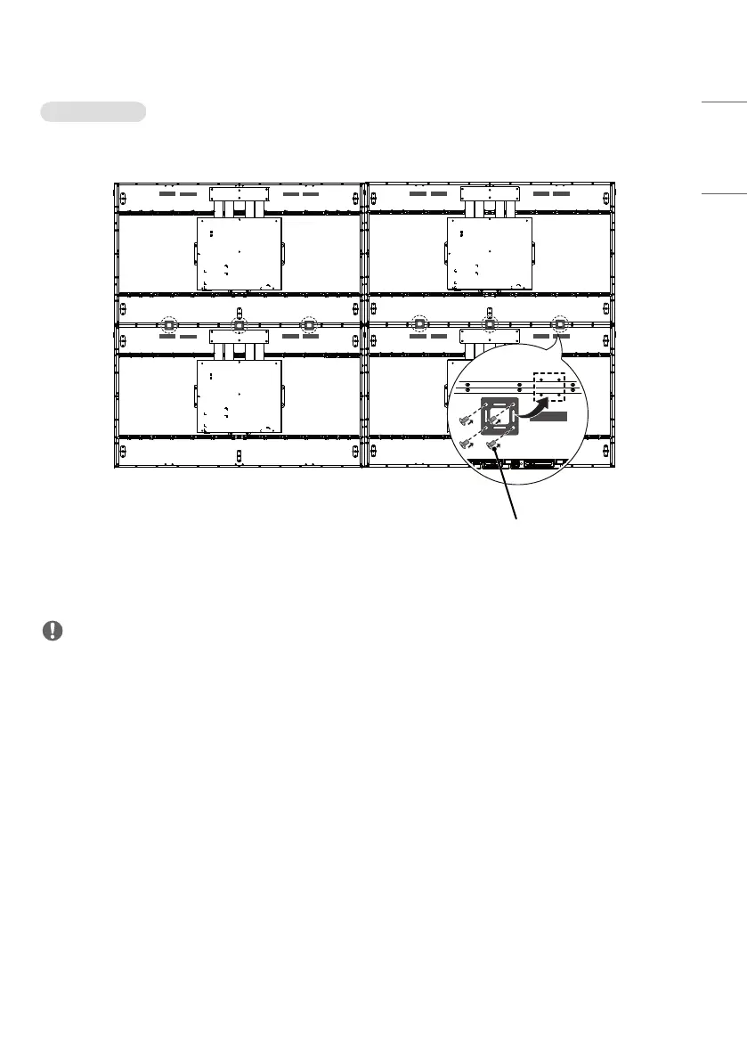
How to Join Sets
1 After joining the sets, use the tiling guide to adjust the gap between the sets.
(M3 x L4.5) x 44
2 Now the 2x2 tiling is complete. You can tile in various combinations, such as 3x3.
NOTE
You may mount the set without using the tiling guide; this does not affect the performance of the device.
The screws are enclosed with the other components in the box, including the tiling guides.
Refer to Easy Setup Guide for a detailed connection diagram.

Other manuals for LG 55EF5K

Related product manuals