EasyManua.ls Logo

LG A2UW166FA1 - 3. Outdoor Unit

LG A2UW166FA1
268 pages
Print Icon
To Next Page IconTo Next Page
To Next Page IconTo Next Page
To Previous Page IconTo Previous Page
To Previous Page IconTo Previous Page
Loading...
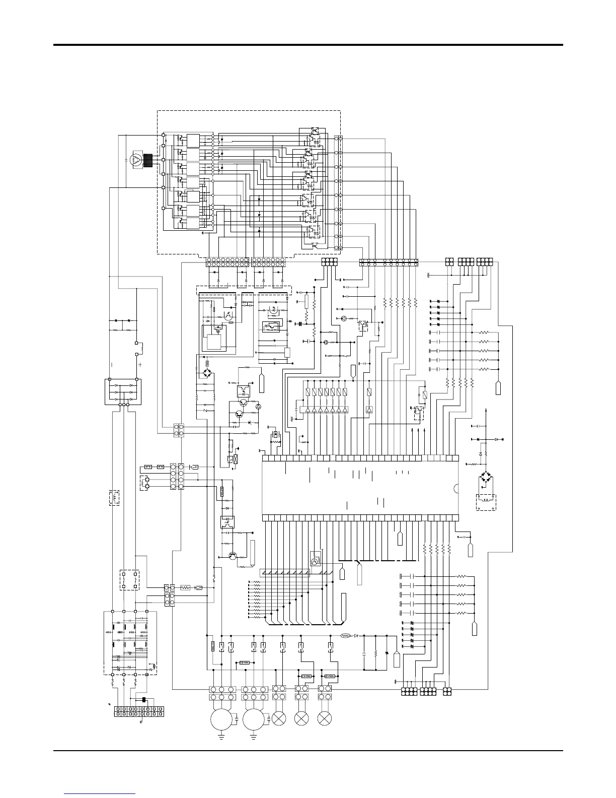
150 Multi type Air Conditioner
Schematic Diagram
2. Outdoor Unit
1) A2UW146FA0/1/2, A2UW166FA0/1, A2UW186FA0, A3UW186FA0/1, A3UW246FA0, A4UW246FA0,
A4UW306FA0, A4UW306FA1
KIA65084
47uF/50V
103
103
103
NF01J
AC440V/DC1600V, 40A
EG01C
CN-GATE1
800V,0.27uF
COMP
Vn
Si
In
GND
Vcc
Si
Out
In
GND
Fo
Si
Out
GND
In
GND
Fo
Vcc
Out
Vcc
GND
Si
In
Vcc
Fo
Out
GND
Si
Out
GND
Fo
In
GND
Vcc
TEMP
Vvp1
4
Up
32
Ufo
1
Vupc
8
Vvpc
576
Vfo
Vp
Vup1
C01S
10UF
C02S
10UF
Wfo
Vwpc
Wp
11 1210
Vwp1
9
Un
16
17
C03S
10UF
PM50CSD120
NC
GND
Fo
GND
GND
Out
Fo
GND
Vcc
Si
In
Si
Out
In
Vcc
GND
Fo
GND
Vn1
1814
Wn
F0
Br
15
13
Vnc
19
100K,2W
100K,2W
2200uF
2200uF
400V
400V
REACTOR
28A 0.68mH
RM20TPM-2H
TLP621-BL
FBA04HA900
50V
1N4937
R04D
10,1/4W
D13D
330UF
35V
C09D
220UF
35V
C08D
C13D
680P
R06D
FB02D
680,1/4W
1 ,1W
R07D
5.6K
1/4W
R05D
5
3
2
D07D
C12D,100P,1KV
1N4937
D06D
50V
47UF
C02D
IC02D
FB01D
1
82K,1W
R02D
68UF
400V
C01D
1M,1/2W
R00D
104,275V
C02J
1SR139-600
D01D~D04D
IC01D
G6551
R01D
27,5W
4
R06Y,10K
IC01Y
TLP621
IC10S
TLP521*4
TLP559*6
CN-IPM
CN-GATE2
C10S
104
IC04S
10UF
C04S
IC02S
R01S
20K
C07S
104
65
12
C08S
104
8
IC01S
3
43
2
IC09S
C09S
104
R02S
20K
R03S
20K
IC03S
IC08S
10UF
C06S
10UF
C05S
C12S
C11S
104
R04S
20K
R05S
20K
104
IC05S
IC06S
R06S
20K
IC07S
UV WU_ W_V_ Fo 5V
R08T
R07T
R05T
IC03D,SE012N
1SR139-400
D09D
+12V
RU2YX
C03D
R03D
3W
47K
35V
D05D
2200UF
D11D
220UF
D12D
C07D
35V
D10D
220UF
C06D
35V
1K
R09D
C11D,473,630V
473
C14D
R08D
1.2K
D08D
CN_Test
2
+5V
S-TRANS
+5V
C05D
16V
220UF
103
104
680UF
7805
C15D
C04D
C16D
R07Y,1K
1/4W
R05Y
15K
IC04D
+5V
(YELLOW)
LED02T
10K
1K
56K
R06T
1K
IC04M
107M
Q01T
(RED)
LED01T
C01T
1K
R04T
C03T
C02T
R03T,1K
R02T
10K
+5V
103
C04T
10k
R01T
EG01C
CN_TH2
OUT_Pipe
Pipe F
Discharge
Suction
CN_TH3
OUT_Air
CN_TH1
561
561
C01V
R03V
102
CT01N/30A 1:3000
C01J
104,275V
ZNR561D14
ZNR01D
1/4W
2.2K
R04Y
C3198
222
C01Y
20V
1W
R11Y,R12Y
70K,3W
+12V
56K,3W
RY-DISC
RY-DISC
1SR139-600
RC05M
R01V
62K,3W
1K
R02V
1/4W
IC01V
TLP621-BL
D01V
MAGNETIC S/W
480V /40A
332
472
1uF
472
1uF
1uF 1uF
472
332
332
1uF
1uF
472
332
L2:1.5mH
821
1W/1M
1W/1M
2.0uF
2.0uF
821
(102)
821
(102)
(102)
DSA-362MA
1W/1M
2.0uF
L1:2.0mH
R04M~R20M
1K
R06V
R04V
10K
33K
10K
R05V
Q01V
C3198
250V/5A
FUSE
68K
RY-FAN1_L
RC04M
500V,25A
3 ,380V,60Hz
CN-INPUT
500V,25A
500V,25A
R03Y
1/4W
82K
LED01Y(GREEN)
Q01Y
Q02Y
C3198
ZD01Y
R02Y
70K,3W
R01Y
+5V
4.7K
R30M
R12M~R22M
H/Press INT
4.7K
RY-HEATER
RY-FAN2_L
RY-4WAY
RY-SV
311V
D01N~D04N
1SR139-600
680, 1%
D06N
1N4148
103
C02N
C01N
100UF
+5V
1N4148
R02N,1.65K,1%
D05N
R01N
CT01N
C17D
CN_TH4
RC03M
RC02M RC01M
CN_TH5 CN_TH3
TEST S/W
4
10
11
3
2
12
8
1
15
14
13
9
17
16
KRA107M
Q01Z
BUS_ADDR_LEV
BUS_COM
R01H~R05H
5 2349 786
UP V W N
+
+
+
B
IPM
6987 5 432
+
+
15
V
+
+
+
+
+
~
104
104104104
104
1 432 67589
3 2 1567 41
11
+
+
4
+
657
1
3
2 1
2
3
4
2
3
4
1
1
2
2
3
3
45
45
6
6
7
7
9
9
8
8
7894 65132
R01A,1K
15
V
+
15
V
15
V
+
+
C04A
IC01A
KIA7036P
102
R03A,100
10uF/50V
C03A
+
R02A,4.7K
+ +
DC LINK
+5V
C01A
102
+
+5V
12V
R10T~R15T, 270
D01M
1
2
1
2
3
2
4
3
4
2
3
1
2
3
1
2
11
C02HC01H
C03H
C05HC04H
18K
R11H
12.1K6.2K
R13HR12H
6.2K
R15H
6.2K
R14H
1K
5V
Comp
OLP
Power
Relay
+
1
2
-
1
2
4
HIGH
PRESS
RY-PWR
CN-DC
4
CN-PWR
321
3 2 1
PTC
CN-AC
RY-START
1
1
1
1
2
2
CN-POWER
RY-FAN1_H
R
T
S
WHITE
GND
BLACK
N
RED
CN-FAN2
21
21
CN-FAN1
3
3
FAN1
MOTOR
G/Y
P63(AIN03)
59
6
P75(AIN15)
LEV_CTL_A
LEV_CTL_B
LEV_CTL_C
LEV_ENABLE
RY-FAN_1H
P16(PDV1)
P14(PPG)
P15(DVO/TC2)
TEST
P20(INT5/STOP)
P17(PDU1)
P22
RESET
VSS
XOUT
28
104
16MHz
OSC01B
R01B,1M
32
30
XIN
31
29
RY-FAN_1L
RY-FAN_2H
RY-START
RY-FAN_2L
9
8
10
11
U1
C04M
6
5
4
13
14
15
U1
U1
U1
U1
12 7
P21
26
27
25
21
24
23
22
P34
37
P30
P32
P33
P31
LEV_A_4
33
+5V
35
34
36
LEV_A_1
LEV_A_2
LEV_A_3
P43(RxD)
P36
P35
P37
P41
P42
P40
39
38
40
LEV_B_2
LEV_B_3
LEV_B_1
LEV_B_4
42
43
44
41
P77(AIN17)
P76(AIN16)
P02(U)
P03(W)
P01(V)
P00(W)
P06(EMG1)
P07(CL1/PDW1)
P05(U)
P10(INT0)
P11(INT1)
P12(INT2/TC1)
P04(V)
U1
RY-PWR
F0_IPM
RY-SV
RY-HEATER
RY-4WAY
IPM_5V_ENB
3
2
16
17
U1
U1
118
U1
17
19
18
20
P13
14
16
15
W2
H/Press INT
DC_LINK
U2
W1
V2
V1
KRC107M
Q01M
12
11
10
13
8
7
9
P52(PWM4/PDO4)
P50(INT3/TC3)
P51(INT4/TC4)
P46(SCL/SI)
P47(SDA/SO)
P45(SCK)
P44(TxD)
48
45
46
47
TX_A
TX_B
RX_A
51
49
50
TX_D
TX_C
RX_C
RX_B
P61(AIN01)
P62(AIN02)
P60(AIN00)
P53(HPWM0)
VASS
P54
VREF
+5V
55
53
54
52
GND
TX_E
RX_D
57
56
58
TX_F
RX_E
RX_F
NTC01K
100D-9
RY-FAN2_H
5V
5V
C06H C07H
104104
15uF,450V
1SR139-600
D13K
C13K
471,250V
1M,1/2W
R31K
C09H
104
C08H
104
C10H
104
+
C31K
TSUP_E
TSUP_B
TSUP_C
TSUP_D
TSUP_A
~
P70(AIN10)
P74(AIN14)
P72(AIN12)
P73(AIN13)
P71(AIN11)
SUCTION
DISCHARGE
TSUP_F
OUT_PIPE
OUT_AIR
CT_AD
5
4
3
1
2
CT_AD
+
+
~
P64(AIN04)
P66(AIN06)
P65(AIN05)
P67(AIN07)
GMS81516
IC01M
VDD
60
61
62
63
64
+5V
R17H
12.1K
5V
R06H~R10H
1K
6.2K
R16H
R19H
6.2K
R18H
6.2K
R20H
6.2K
5V
2
2
CN-HEATER
3
21
3
2
1
1
1
G/Y
MOTOR
FAN2
CN-4WAY
2
2
1
1
1
1
CN-SV
2
2
3
2
4
4
1
1
3
2
4
4
2
3
3
1
1
2
3
3
4 4
44
+++++
+ + + + +
C16H~C20H
1UF/50V
1UF/50V
C11H~C15H

Table of Contents

Other manuals for LG A2UW166FA1

Related product manuals