EasyManua.ls Logo

LG A2UW166FA1 - Wiring Diagram

LG A2UW166FA1
268 pages
Print Icon
To Next Page IconTo Next Page
To Next Page IconTo Next Page
To Previous Page IconTo Previous Page
To Previous Page IconTo Previous Page
Loading...
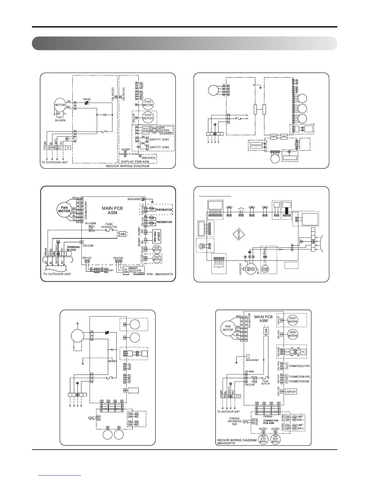
154 Multi type Air Conditioner
3854A20135W
CN-TH1
THERMISTOR(OUT-PIPE)
THERMISTOR
(IN-PIPE)
THERMISTOR
(ROOM)
CN-TH2
CN-U/D
CN-MOTORCN-POWER
AC PCB ASM DC PCB ASM
FUSE
250V 2A
ZNR
CONNECT
PCB ASM
DISPLAY
PCB
ASM
AC PWB ASM DC PWB ASM
CN-UD(BL)CN-LR1(WH)CN-LR2(WH)
PLASMA
AIR CLEAN
CN-D1(WH) CN-D2(WH)
BK
RD
STEP
MOTOR
STEP
MOTOR
STEP
MOTOR
STEP
MOTOR
FORCE S/W
SAFETY S/W
SAFETY S/W
3854A20135Y
CN-GND1
CN-ACDC1
CN-ACDC2
CN-HVB(BL)
H.V.
ASM
CN-MOTOR1
BK
WH
YL
RD
FAN
MOTOR
CN-POWER
FUSE
250V 3.15A
ZNR
TO OUTDOOR UNIT
BR
BL
GN/YL
RD
1(L) 2(N)
34
Z
CN-TH1
THERMISTOR(OUT-PIPE)
THERMISTOR(IN-PIPE)
THERMISTOR(ROOM)
CN-TH2
1. Room Type Indoor Unit -SQ/SR/ST chassis
2. Art Cool Type Indoor Unit
3. Room Type Indoor Unit - S4/S5 chassis
4. Duct Type Indoor Unit - BG/BT cha
s
sis
5. Art Cool Deluxe Type Indoor Unit
A/C MOTOR BLDC MOTOR
Wiring Diagram
Schematic Diagram
3854A20135X
INDOOR WIRING DIAGRAM
FUSE
250V 2A
TRIAC
CN-MOTOR
SH-CAPA
CN-POWER
TO OUTDOOR UNIT
1(L)
34
2(N)
CN-SW/2 CN-SW/3
CN-STEP2CN-STEP1
CN-MAIN
CN-SW/1
ZNR
MOTOR
MAIN PCB
ASM
CONNECTOR
PCB ASM
CN-U/DCN-HVB
H.V.B A/CL
OR
STEP
MOTOR
CN-L/R
STEP
MOTOR
SUC
STEP
MOTOR-2
SUC
STEP
MOTOR-1
DISPLAY
LIMIT
S/W-1
LIMIT
S/W-2
FORCED
OPERATION
S/W
BK
BR
BL
RD
GN/YL
YL
GN/YL
RD RD
BK BK
CN-TH1CN-VFD
THERMISTOR(OUT-PIPE)
THERMISTOR(IN-PIPE)
THERMISTOR(ROOM)
CN-TH2
BR
3854A20419A
CN-REMO
CN-PIPE1
RF-REMOTE
CONTROL
OPTION
CN-ROOMCN-CC
CN-DISP
CN-DPUMP
CN-POWER
CN-MOTOR
ROOM.
THERMISTOR
CN-AIRC
A/CL
UNIT
CENTRAL CONTROL
TELE CONTROL
DRY CONTACT
WIRING DIAGRAM
IN-PIPE.
THERMISTOR
CN-PIPE2
OUT-PIPE.
THERMISTOR
REMOTE
CONTROL
TO OUTDOOR UNIT
FUSE
GN/YL
RD
BL
BR
1(L)
2(N)
345
CN-OUT
CN-PTC
PTC
HEATER
VENTILATION
E/HEATER
CN-ZONE
ZONE CONTROL
CN-PIPE1
FLOAT S/W

Table of Contents

Other manuals for LG A2UW166FA1

Related product manuals