EasyManua.ls Logo

LG AUUW366D2 - Page 126

LG AUUW366D2
158 pages
To Next Page IconTo Next Page
To Next Page IconTo Next Page
To Previous Page IconTo Previous Page
To Previous Page IconTo Previous Page
Loading...
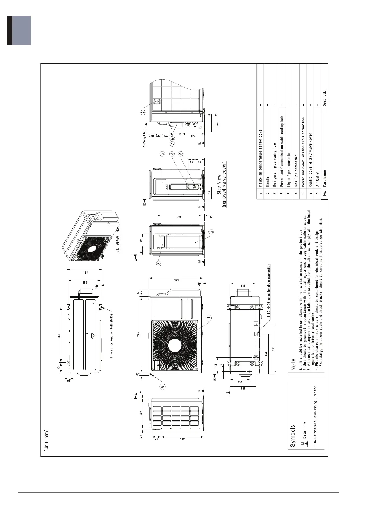
6
Single CAC Outdoor Unit
Compact Inverter
3. Dimensions
AUUW18GC0 [UU18WC UL0]
Chassis code : UL2

Related product manuals