EasyManua.ls Logo

LG GR-399 - LIGHTING CIRCUITS OF KEY BUTTON INPUT AND DISPLAY PARTS

LG GR-399
41 pages
To Next Page IconTo Next Page
To Next Page IconTo Next Page
To Previous Page IconTo Previous Page
To Previous Page IconTo Previous Page
Loading...
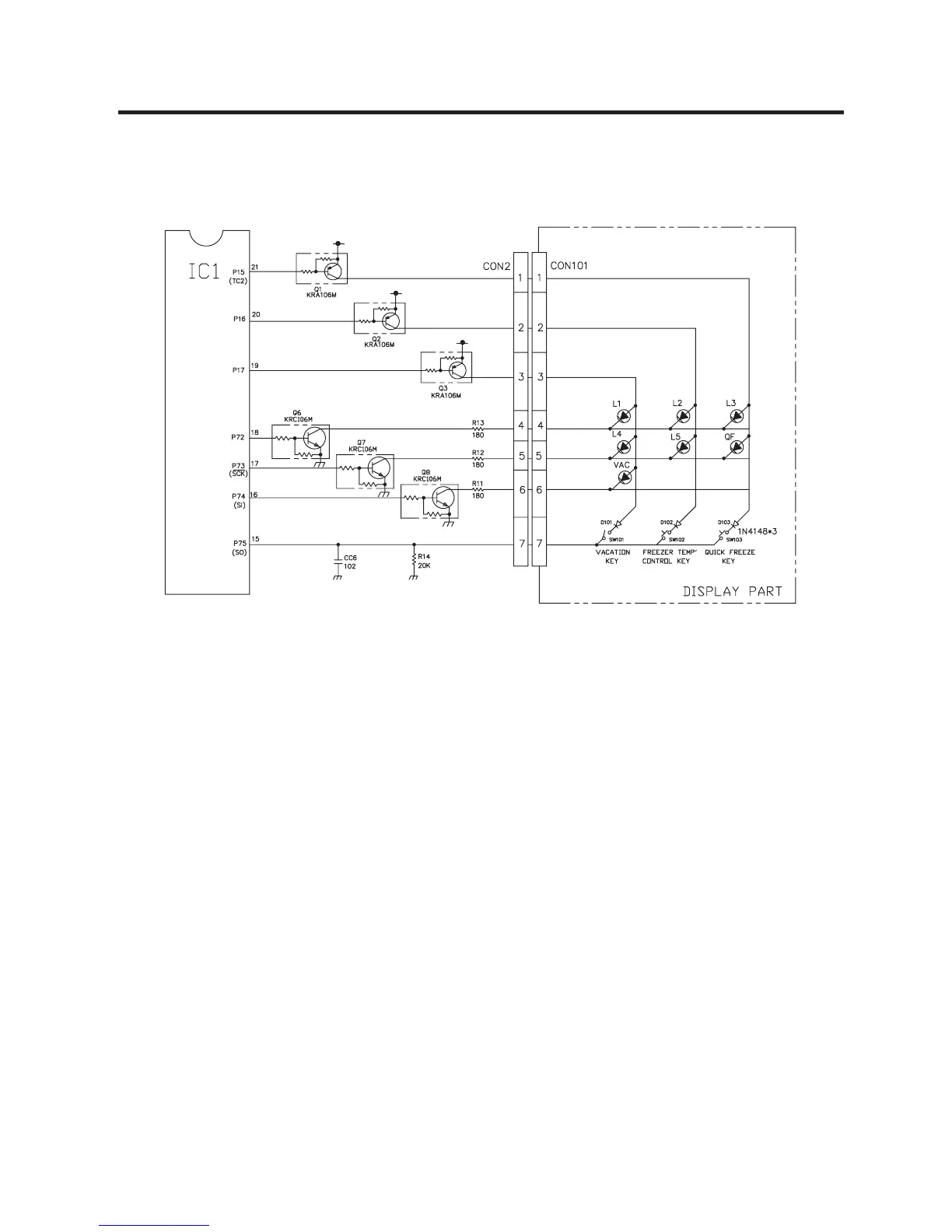
8) LIGHTING CIRCUITS OF KEY BUTTON INPUT AND DISPLAY PARTS
The above circuit is to judge the operation conditions of function key and to light each function indicating LED. It is operated
by SCAN method.
- 28 -

Related product manuals